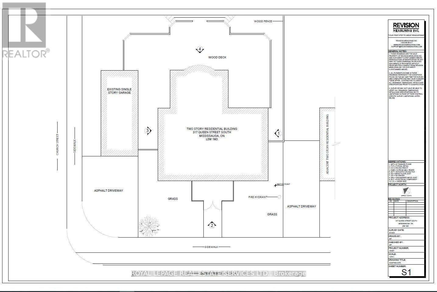
317 Queen Street S, Mississauga, Ontario L5M 1M3

Listed for:
$1,400,000
4 beds
2 baths
Listed 72 days ago
House for rent: 317 Queen Street S, Mississauga, Ontario L5M 1M3

View all 37 photos

About

MISSISSAUGA ROAD AND CHURCH Great PROPERTY, located at the corner of Queen St S & Church St in Famous Destination OldeVillage of Streetsville. 4 bedroom Residence, Classic Georgian Centre Hall Style, DesignatedHeritage property. Newly renovated interior, generous size principal rooms, 2238 sq ft ofliving space. Backs onto green space and the Credit River ravine, gentle slope with panoramicview, carpet free. Updated furnace & owned hot water tank in 2017. Washer & Dryer. New gasfireplace in living room. (id:27476)

Property Highlights

MLS® Number
W12855010
Type
Single Family
Community Name
Streetsville
Ownership Type
Freehold
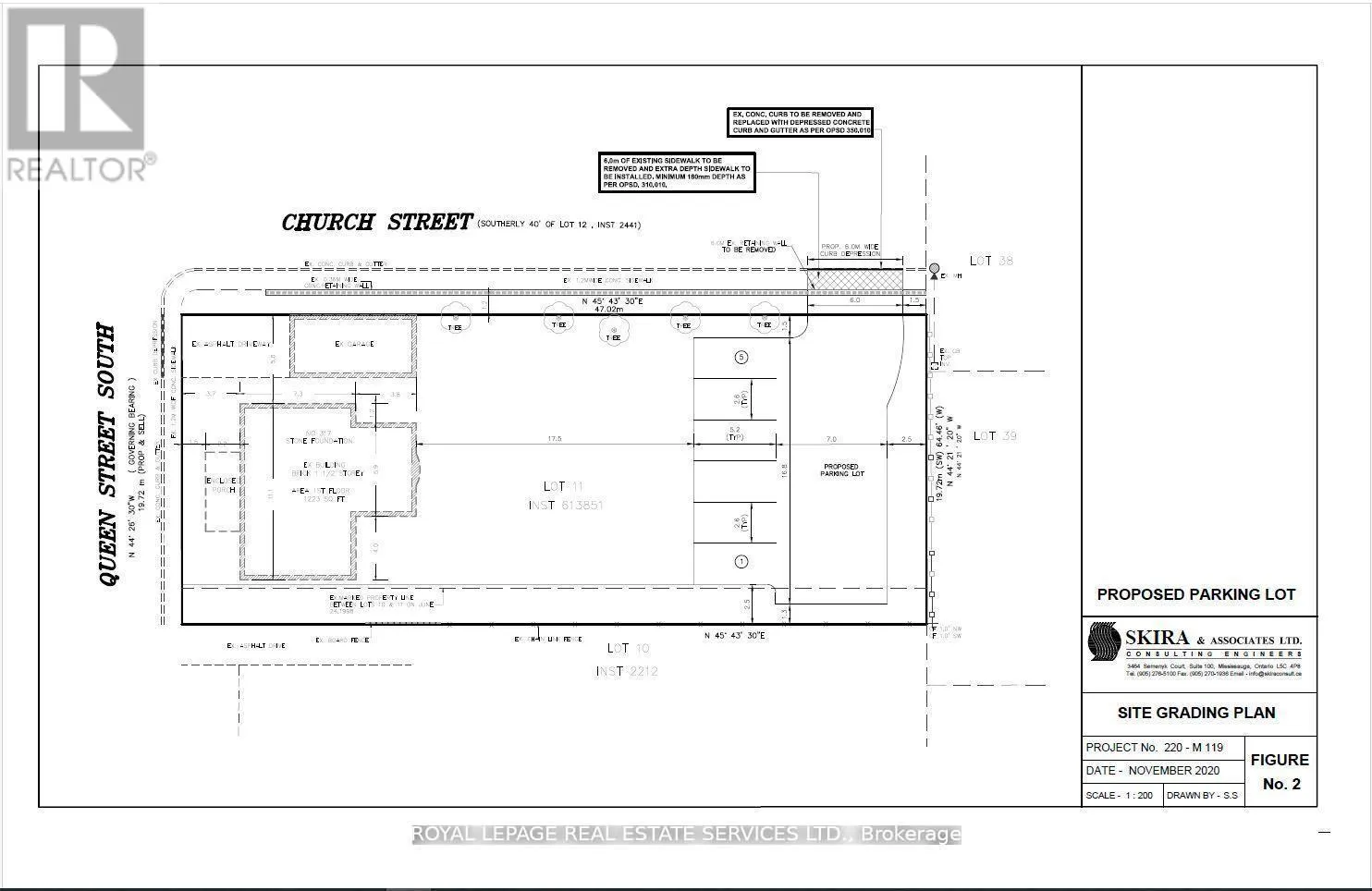
Land Size
63 x 154 FT
Parking Space Total
2

Building

Building Type
House
Storeys
2.00
Square Footage
2000 - 2500 sqft
Bathrooms Total
2
Bedrooms Above Ground
4
Bedrooms Total
4
Exterior Finish
Aluminum siding, Brick
Fireplace Present
Yes
Basement Type
N/A (Unfinished)
Basement Features
Building Heating Type
Forced air
Heating Fuel
Natural gas
Building Cooling Type
Central air conditioning

Utilities

Water
Municipal water
Utility Sewer
Sanitary sewer

Room Layout

Bedroom 2
Second level
4.1 m x 3.63 m
Bedroom 3
Second level
3.95 m x 3.76 m
Bedroom 4
Second level
3.49 m x 3.06 m
Primary Bedroom
Second level
4.3 m x 3.79 m
Living room
Main level
Measurements not available
Dining room
Main level
Measurements not available
Family room
Main level
Measurements not available
Office
Main level
5.37 m x 3.61 m

Location

Learn more about this property
Listing provided by:
ROYAL LEPAGE REAL ESTATE SERVICES LTD.
MLS® number:
W12855010
Agent:
Manuel Choi
*Indicates required field
Name is required
Email is required
Please enter a valid phone number (e.g., 416-111-1111).

Street Spotlight - For sale