7 - 1755 Rathburn Road E, Mississauga, Ontario L4W 2M8

Listed for:
$849,000
3 beds
3 baths
Listed 24 days ago
Row / Townhouse for rent: 7 - 1755 Rathburn Road E, Mississauga, Ontario L4W 2M8

View all 26 photos

About

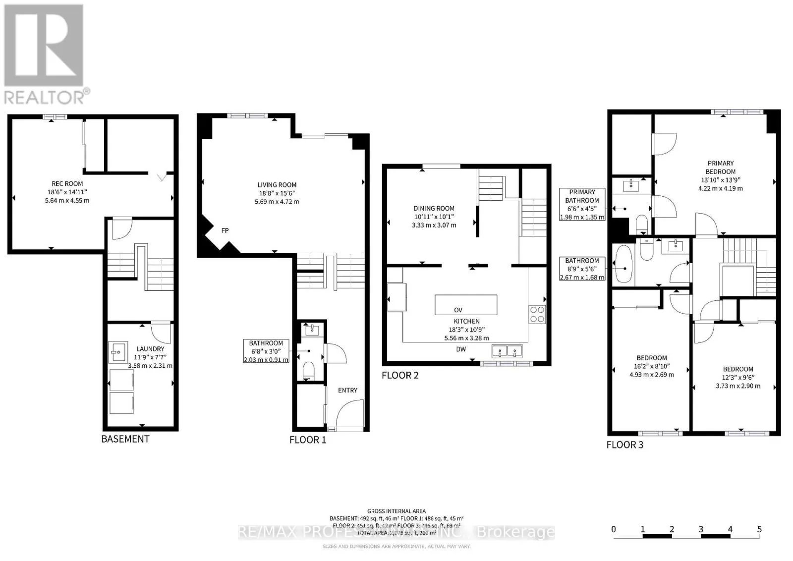
Rathburn Rd E and Fieldgate Dr Welcome to this beautifully maintained 3-bedroom, 3-bathroom condo townhouse located in the highly sought-after Rockwood Village. Offering 2,175 sq ft of total living space and a single-car garage, this home features a bright, open-concept layout. With soaring 15-foot ceilings in the living room, the home's centerpiece is a stunning gourmet kitchen with full wrap-around granite countertops that provide exceptional workspace, functionality, and flow - ideal for comfortable everyday living and entertaining. Designed to impress, this home also showcases three modern bathrooms, two of which were fully renovated in 2024, offering modern finishes and a spa-like feel throughout. Enjoy peace of mind with major upgrades including new AC (2020), new roof (2021), new windows (2022), new siding (2024), and repaved roadways (2025). The community is also being enhanced with new doors coming in 2026. Maintenance fees include lawn care, landscaping, and snow removal. Steps to walking trails and just 400m to Longo's, Shoppers Drug Mart, and Starbucks, with close proximity to Sacred Heart Catholic Elementary School and easy access to Highways 403, 410, and 427. A move-in-ready home in a prime location. (id:27476)

Property Highlights

MLS® Number
W12859726
Type
Single Family
Community Name
Rathwood
Maintenance Fee
707.26
Ownership Type
Condominium/Strata
Parking Space Total
2

Building

Building Type
Row / Townhouse
Square Footage
1600 - 1799 sqft
Bathrooms Total
3
Bedrooms Above Ground
3
Bedrooms Total
3
Amenities
Fireplace(s)
Exterior Finish
Vinyl siding, Brick
Fireplace Present
Yes
Basement Type
N/A (Finished)
Basement Features
Building Heating Type
Forced air
Heating Fuel
Natural gas
Building Cooling Type
Central air conditioning

Location

Learn more about this property
Listing provided by:
RE/MAX PROFESSIONALS INC.
MLS® number:
W12859726
Agent:
Marc Routhier
*Indicates required field
Name is required
Email is required
Please enter a valid phone number (e.g., 416-111-1111).

Street Spotlight - For sale