65 - 405 Hyacinthe Boulevard, Mississauga, Ontario L5A 3N1

Listed for:
$729,000
5 beds
2 baths
Listed 20 days ago
Row / Townhouse for rent: 65 - 405 Hyacinthe Boulevard, Mississauga, Ontario L5A 3N1

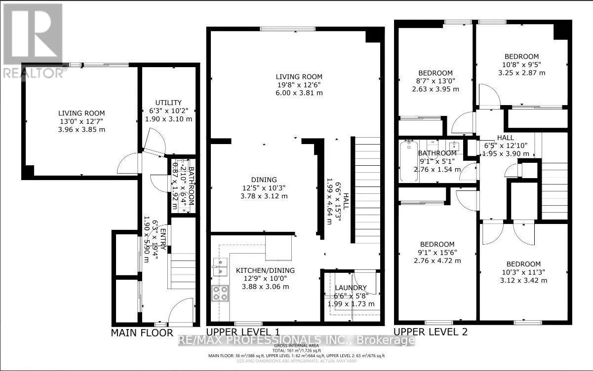
View all 42 photos

About

Bloor & Central Pkwy Desirable Westwind Gardens Townhouses - rarely available! This is one of the largest units in the complex. 3-Storey design with 4 upper level bedrooms- perfect for large families or additional rooms for home office. The main level consists of a large dining/ living room with separate large kitchen (brand new stove/oven!) and walk-in pantry/laundry closet. The ground level features a powder room and additional +1 bedroom/office/family room with walkout to a fenced-in yard- perfect for entertaining/ bbq patio/ pets and surrounded by large trees. This unit is very functional with no wasted sq footage. Ready for someone to make it their own! *Water and Cable TV included in maintenance fees!* Westwind Gardens is a well maintained and managed townhouse complex with a ton of visitor parking, a playground and outdoor pool- truly unique! Located in the desirable Mississauga Valleys neighbourhood- steps to transit, close to parks and great schools, nearby shopping, amenities and quick access to highways + more! (id:27476)

Property Highlights

MLS® Number
W12875772
Type
Single Family
Community Name
Mississauga Valleys
Maintenance Fee
628.18
Ownership Type
Condominium/Strata
Parking Space Total
2

Building

Building Type
Row / Townhouse
Storeys
3.00
Square Footage
1600 - 1799 sqft
Bathrooms Total
2
Bedrooms Above Ground
4
Bedrooms Total
5
Amenities
Storage - Locker
Exterior Finish
Brick
Fireplace Present
No
Basement Type
None
Basement Features
Building Heating Type
Forced air
Heating Fuel
Natural gas
Building Cooling Type
Central air conditioning

Location

Learn more about this property
Listing provided by:
RE/MAX PROFESSIONALS INC.
MLS® number:
W12875772
Agent:
Dan Saracino
*Indicates required field
Name is required
Email is required
Please enter a valid phone number (e.g., 416-111-1111).

Community Spotlight: Homes For sale in Your Neighborhood