4 - 1935 Drew Road, Mississauga, Ontario L5S 1M7

Listed for:
$18
0 beds
0 baths
Listed 33 days ago
Offices for rent: 4 - 1935 Drew Road, Mississauga, Ontario L5S 1M7

View all 25 photos

About

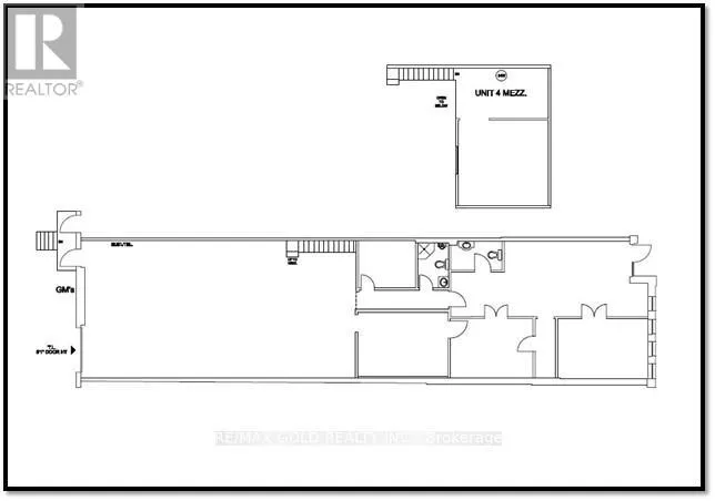
Cross Streets: Bramalea Rd & Drew Rd. ** Directions: North West Corner of Bramalea Rd & Drew Rd (in between Derry Rd E & Steeles Ave E). Excellent Location In Mississauga! Recently Renovated Unit, Clean Industrial And Well Managed Building, 2660 Sqft With 4Private Offices, 2 Washrooms, Reception, A Kitchenette and Mezzanine for storage, One Truck Level Shipping Door CanAccommodate 53' Trailers. Close To Pearson International Airport, Easily Accessible To All Major Highways 410, 407, 427 &401. New Renovations inside and Outside of the Building. Steps Away From Public Transportation And Various Amenities.Move in anytime. The tenant may increase or decrease the Industrial, Warehouse or Office area as per requirement. (id:27476)

Property Highlights

MLS® Number
W12883524
Type
Office
Community Name
Northeast

Building

Building Type
Offices
Square Footage
2660 sqft
Fireplace Present
No
Basement Type
Basement Features
Building Heating Type
Forced air
Heating Fuel
Natural gas
Building Cooling Type
None

Utilities

Water
Municipal water

Location

Learn more about this property
Listing provided by:
RE/MAX GOLD REALTY INC.
MLS® number:
W12883524
Agent:
Baljinder Sra
*Indicates required field
Name is required
Email is required
Please enter a valid phone number (e.g., 416-111-1111).