1005 - 1300 Bloor Street, Mississauga, Ontario L4Y 3Z2

Listed for:
$579,000
2 beds
1 baths
Listed 15 days ago
Apartment for rent: 1005 - 1300 Bloor Street, Mississauga, Ontario L4Y 3Z2

View all 41 photos

About

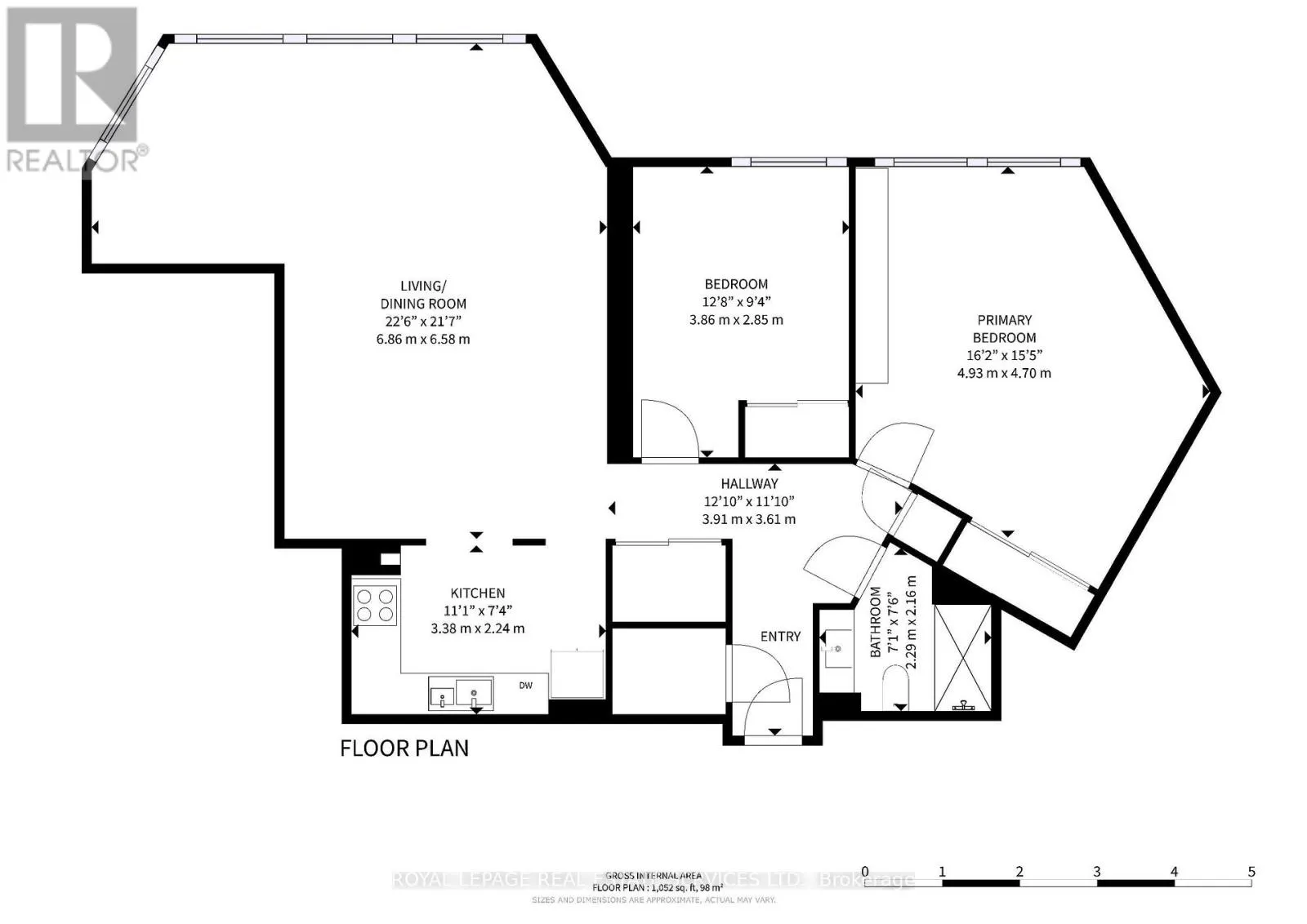
Bloor St/Dixie Rd Welcome to your move-in ready, sun-drenched urban sanctuary featuring breathtaking panoramic views of the Toronto skyline. This turnkey, carpet-free home boasts premium laminate flooring throughout, providing a sleek and modern aesthetic that is as durable as it is stylish. The open-concept living area is designed for seamless entertaining and flows beautifully into the kitchen, which features a convenient breakfast bar for casual dining. While the updated washroom offers contemporary finishes, large windows in every other room flood the living spaces with natural light. Adding to the property's incredible value, this unit comes complete with one dedicated parking space and a storage locker. Experience ultimate peace of mind with an all-inclusive lifestyle, as the maintenance fees cover your heat, hydro, and water, along with unlimited Bell Fibe internet. Residents also enjoy an incredible suite of amenities including a 24-hour concierge, a rooftop deck, an indoor car wash with a car vacuum and tire inflator, a general convenience store, a pickleball court, shuffleboard, a billiard room, and even a woodworking shop. Whether you are watching the city lights at night or enjoying the airy flow of the interior during the day, this unit offers the perfect blend of sophisticated design and effortless convenience in the heart of the city. (id:27476)

Property Highlights

MLS® Number
W12890344
Type
Single Family
Community Name
Applewood
Maintenance Fee
988.28
Ownership Type
Condominium/Strata
Parking Space Total
1

Building

Building Type
Apartment
Square Footage
1000 - 1199 sqft
Bathrooms Total
1
Bedrooms Above Ground
2
Bedrooms Total
2
Amenities
Storage - Locker
Exterior Finish
Concrete
Fireplace Present
No
Basement Type
None
Basement Features
Building Heating Type
Forced air
Heating Fuel
Natural gas
Building Cooling Type
Central air conditioning

Location

Learn more about this property
Listing provided by:
ROYAL LEPAGE REAL ESTATE SERVICES LTD.
MLS® number:
W12890344
Agent:
David Ding
*Indicates required field
Name is required
Email is required
Please enter a valid phone number (e.g., 416-111-1111).

Street Spotlight - For sale