500 Selsey Drive, Mississauga, Ontario L5A 1B9

Listed for:
$1,389,900
3 beds
2 baths
Listed 8 days ago
House for rent: 500 Selsey Drive, Mississauga, Ontario L5A 1B9

View all 44 photos

About

North Service Rd & Munden Rd Welcome to this gorgeous, extensively updated bungalow nestled on a quiet, family-friendly street in a highly sought-after neighborhood. Turn-key and meticulously appointed, this home seamlessly blends modern luxury with everyday convenience. Step inside to discover a bright, inviting main floor featuring gleaming hardwood floors and thoughtfully designed wider door openings throughout. The heart of the home is a spectacular dream kitchen, boasting elegant quartz countertops with a matching backsplash, modern under-cabinet lighting, pot lights, premium stainless-steel appliances including a built-in microwave, and a convenient inside entry door to garage. The main level offers three spacious bedrooms with ample natural light, accompanied by a beautifully, newly updated main bathroom. Downstairs, the fully finished basement with vinyl flooring and pot lights provides fantastic bonus living space, perfect for a family room, home gym, or entertainment area. Buy with absolute confidence! Enjoy peace of mind with newer roof shingles, newer furnace, and newer windows on the main level. The property also features a newer garage complete with a side door, an automatic garage door opener. Location is everything, and this home truly has it all. Enjoy the perfect blend of tranquility and convenience, located just minutes from excellent schools, shopping, the local recreation center, and the hospital. Commuters will love the quick and easy access to major highways. (id:27476)

Property Highlights

MLS® Number
W12890422
Type
Single Family
Community Name
Cooksville
Ownership Type
Freehold
Land Size
51.3 x 125 FT|under 1/2 acre
Parking Space Total
4

Building

Building Type
House
Storeys
1.00
Square Footage
1100 - 1500 sqft
Bathrooms Total
2
Bedrooms Above Ground
3
Bedrooms Total
3
Amenities
Hospital, Park, Public Transit, Schools
Exterior Finish
Brick, Concrete Block
Fireplace Present
No
Basement Type
N/A (Finished)
Basement Features
Building Heating Type
Forced air
Heating Fuel
Natural gas
Building Cooling Type
Central air conditioning

Utilities

Water
Municipal water
Utility Sewer
Sanitary sewer

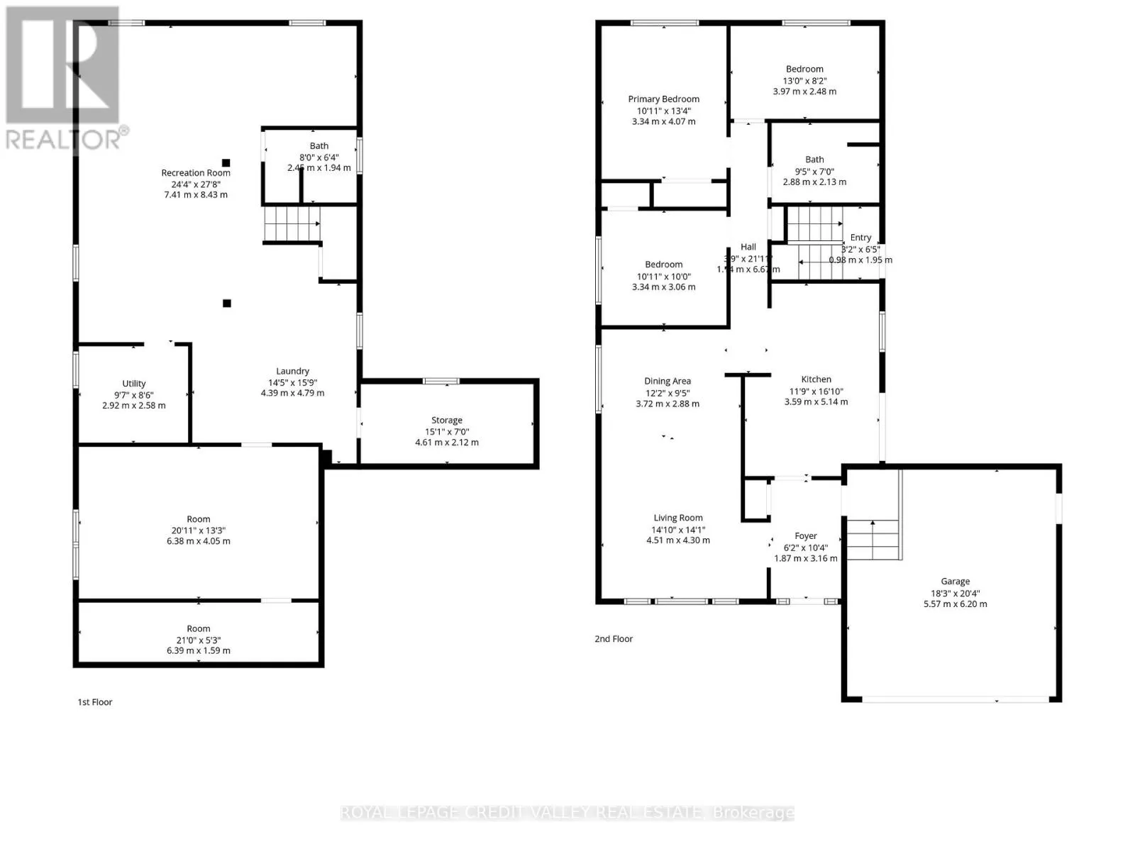
Room Layout

Recreational, Games room
Lower level
7.41 m x 8.43 m
Laundry room
Lower level
4.39 m x 4.79 m
Games room
Lower level
6.38 m x 4.05 m
Utility room
Lower level
4.61 m x 2.12 m
Kitchen
Ground level
5.14 m x 3.59 m
Dining room
Ground level
3.72 m x 2.88 m
Living room
Ground level
4.51 m x 4.3 m
Primary Bedroom
Ground level
3.34 m x 4.07 m
Bedroom 2
Ground level
3.34 m x 3.06 m
Bedroom 3
Ground level
3.97 m x 2.48 m

Location

Learn more about this property
Listing provided by:
ROYAL LEPAGE CREDIT VALLEY REAL ESTATE
MLS® number:
W12890422
Agent:
Joe Pecharich
*Indicates required field
Name is required
Email is required
Please enter a valid phone number (e.g., 416-111-1111).