2558 Mindemoya Road, Mississauga, Ontario L5C 2R2

Listed for:
$3,200
3 beds
2 baths
Listed 15 days ago
House for rent: 2558 Mindemoya Road, Mississauga, Ontario L5C 2R2

View all 41 photos

About

Dundas/Mississauga Rd Welcome to this charming detached double garage home featuring 2+1 bedrooms and 2 full bathrooms, total 2000 living space, located in the quaint village of Erindale. This brick bungalow boasts a walkout to the backyard and overlooks the picturesque Credit River Ravine. The living room features a stunning floor-to-ceiling stone wood-burning fireplace with a walkout to the deck. The recreation room includes a stone fireplace with a gas insert. Conveniently located near Erindale parks, shopping malls, and highways and walking distance to UTM. (id:27476)

Property Highlights

MLS® Number
W12891824
Type
Single Family
Community Name
Erindale
Ownership Type
Freehold
Land Size
62 x 213.5 FT ; 62 Fx213.5 N X161.11 S
Parking Space Total
3

Building

Building Type
House
Storeys
1.00
Square Footage
700 - 1100 sqft
Bathrooms Total
2
Bedrooms Above Ground
2
Bedrooms Total
3
Amenities
Fireplace(s)
Exterior Finish
Brick
Fireplace Present
Yes
Basement Type
N/A (Finished)
Basement Features
Walk out
Building Heating Type
Forced air
Heating Fuel
Natural gas
Building Cooling Type
Central air conditioning

Utilities

Water
Municipal water
Utility Sewer
Sanitary sewer

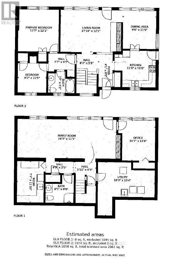
Room Layout

Utility room
Lower level
4.95 m x 4.67 m
Primary Bedroom
Main level
3.78 m x 3.67 m

Location

Learn more about this property
Listing provided by:
BAY STREET GROUP INC.
MLS® number:
W12891824
Agent:
Jennifer Yang
*Indicates required field
Name is required
Email is required
Please enter a valid phone number (e.g., 416-111-1111).

Community Spotlight: Homes For rent in Your Neighborhood