25 - 5155 Spectrum Way, Mississauga, Ontario L4W 5A1

Listed for:
$2,630,000
0 beds
0 baths
Listed 10 days ago
Offices for rent: 25 - 5155 Spectrum Way, Mississauga, Ontario L4W 5A1

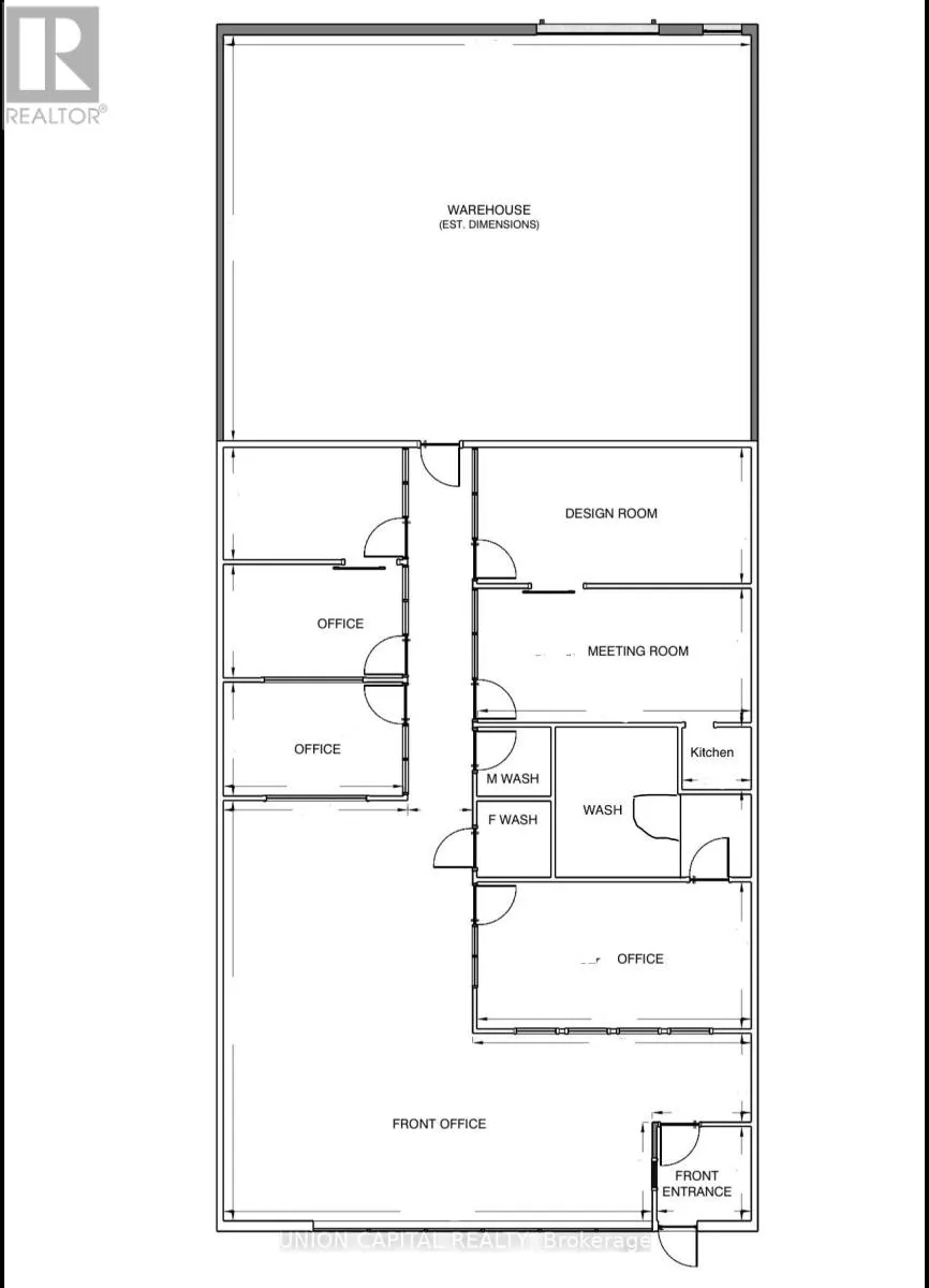
View all 6 photos

About

Matheson Blvd & Spectrum Way A rare opportunity to secure a freestanding commercial unit in a prime Mississauga location near the airport. Unit 25 stands out with its expansive warehouse space, soaring ceilings, and advanced high-tech security system-features seldom found in today's market. Fully renovated from top to bottom, the unit offers a modern, turnkey environment suitable for a wide range of business uses. The open layout is enhanced by generous ceiling heights, creating a bright and spacious atmosphere with excellent functional flexibility. Designed with accessibility in mind, the unit includes wide entryways to accommodate all users. A brand-new kitchen provides added convenience for staff, while premium flooring and energy-efficient lighting elevate the overall finish. The rear warehouse area is equipped with oversized doors for seamless truck access, making logistics and operations highly efficient. Additional features include automated window blinds and two newly installed EV chargers at the rear of the unit, offering added convenience and future-ready infrastructure. Freestanding units of this caliber are rarely offered-an outstanding opportunity for businesses seeking space, security, and a top-tier location. (id:27476)

Property Highlights

MLS® Number
W12917004
Type
Office
Community Name
Airport Corporate
Land Size
Bldg=41 x 98 FT

Building

Building Type
Offices
Square Footage
3980 sqft
Amenities
Highway
Fireplace Present
No
Basement Type
Basement Features
Building Heating Type
Forced air
Heating Fuel
Natural gas
Building Cooling Type
Fully air conditioned

Utilities

Water
Municipal water

Location

Learn more about this property
Listing provided by:
UNION CAPITAL REALTY
MLS® number:
W12917004
Agent:
Gary Luk
*Indicates required field
Name is required
Email is required
Please enter a valid phone number (e.g., 416-111-1111).