1713 - 310 Burnhamthorpe Road, Mississauga, Ontario L5B 4P9

Listed for:
$679,900
3 beds
2 baths
Listed 26 days ago
Apartment for rent: 1713 - 310 Burnhamthorpe Road, Mississauga, Ontario L5B 4P9

View all 36 photos

About

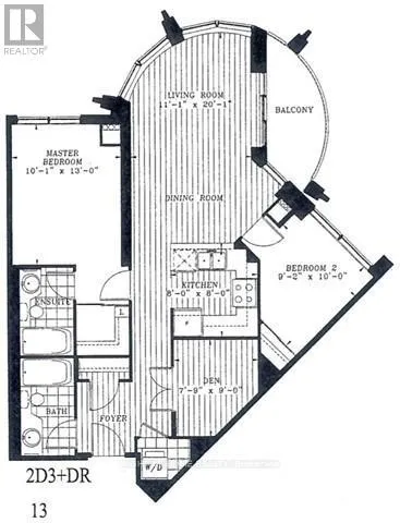
Burnhamthorpe Rd W/Living Arts Welcome to this stunning and rarely available 971 sq. ft. CORNER UNIT on the 17th floor, filled with natural light and offering breathtaking panoramic lake and city views to the north, west, and south. This spacious home features two large bedrooms plus a bright den with elegant glass French doors, along with two full bathrooms, including a comfortable primary ensuite designed for everyday convenience and relaxation.Enjoy the added value of TWO underground parking spaces and a large adjacent locker, as well as in-suite laundry with a new washer and dryer. The kitchen has been thoughtfully updated with a new sink and faucet, additional cabinetry, granite countertops, and newer full-size stainless steel appliances. Stylish upgraded laminate flooring throughout with soundproof underlay and fresh paint throughout, new custom blinds, make this home truly move-in ready. This gorgeous building offers modern amenities including a 24-hour concierge, indoor pool, hot tub, sauna, fitness centre, theatre room, party room, billiard room, guest suites, and a beautifully landscaped outdoor garden area with BBQ.Ideally located within walking distance to Square One Shopping Centre, close to Sheridan College Hazel McCallion Campus, and steps to transit with quick access to Hwy 403, this home offers exceptional comfort and convenience. Immediate possession available. Dogs (up to 15 lbs) welcome. (id:27476)

Property Highlights

MLS® Number
W12950288
Type
Single Family
Community Name
City Centre
Maintenance Fee
648.87
Ownership Type
Condominium/Strata
Parking Space Total
2

Building

Building Type
Apartment
Square Footage
900 - 999 sqft
Bathrooms Total
2
Bedrooms Above Ground
2
Bedrooms Total
3
Amenities
Security/Concierge, Exercise Centre, Party Room, Visitor Parking, Storage - Locker Hospital, Place of Worship, Public Transit, Schools
Exterior Finish
Concrete
Fireplace Present
No
Basement Type
None
Basement Features
Building Heating Type
Forced air
Heating Fuel
Natural gas
Building Cooling Type
Central air conditioning

Location

Learn more about this property
Listing provided by:
RIGHT AT HOME REALTY, BROKERAGE
MLS® number:
W12950288
Agent:
Claudia Karen Mittelstaedt
*Indicates required field
Name is required
Email is required
Please enter a valid phone number (e.g., 416-111-1111).

Street Spotlight - For sale