48 - 4165 Fieldgate Drive, Mississauga, Ontario L4W 2M9

Listed for:
$838,880
3 beds
3 baths
Listed 13 days ago
Row / Townhouse for rent: 48 - 4165 Fieldgate Drive, Mississauga, Ontario L4W 2M9

View all 42 photos

About

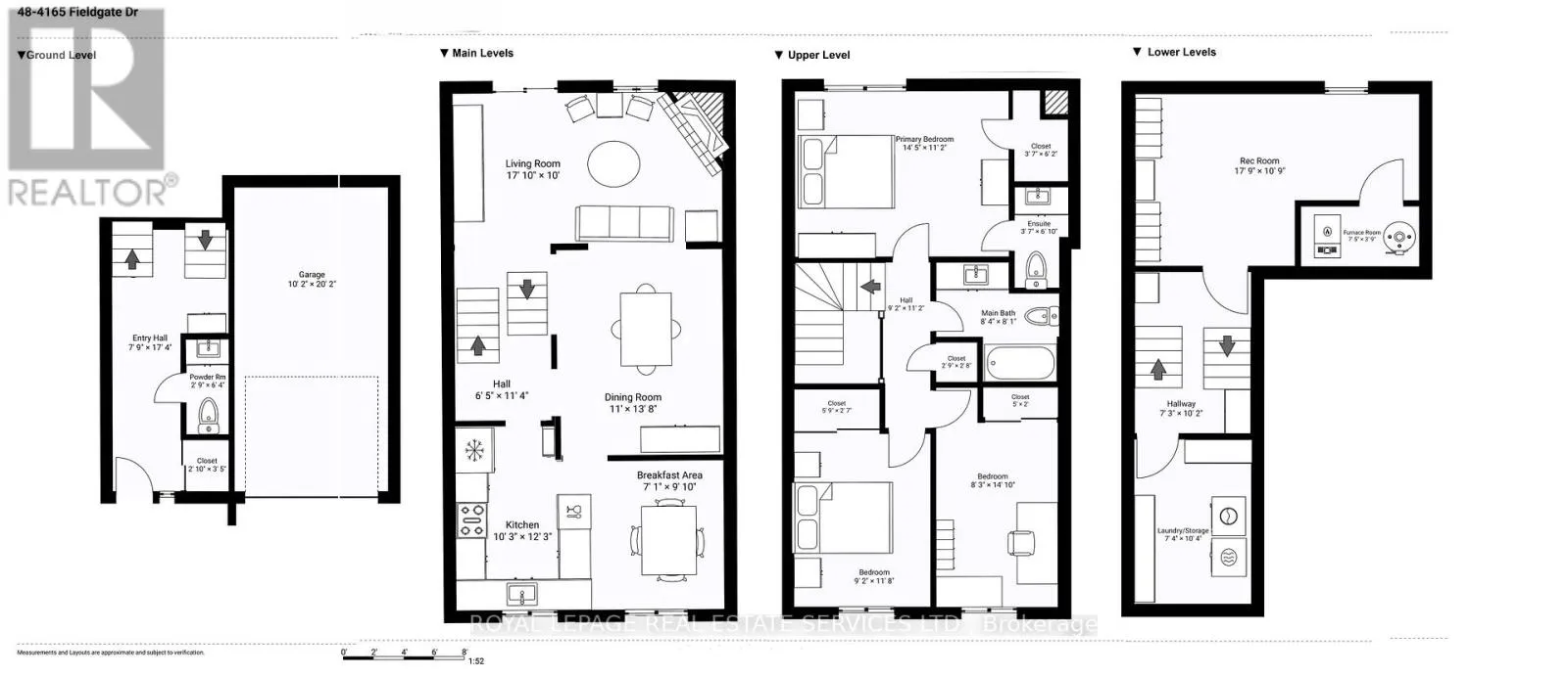
Rathburn / Fieldgate This charming 3-bedroom, 3-bath townhome is situated in the family-friendly neighbourhood of RockwoodVillage, ideally located near the Etobicoke/Mississauga border. Situated in the well-managed Fieldgate Pines complex, this spacious home is within walking distance to Shaver's Trail and Etobicoke Creek, offering a perfect blend of nature and convenience. Designed with a functional multi-level layout, the home offers exceptional space for both everyday living and entertaining. Enjoy a large family-sized eat-in kitchen, a separate formal dining room overlooking a sun-filled living room with lovely cathedral ceilings, floor-to-ceiling windows, and a cozy brick wood-burning fireplace. A walkout from here leads to a rare, private, fully fenced backyard complete with patio and perennial gardens-an ideal outdoor pet friendly retreat. The upper level features three generously sized bedrooms, including a large primary suite with a walk-in closet and 2-piece ensuite, along with a renovated main bath. The finished lower level provides versatile additional living space-perfect for a rec room, home office, or play area-plus a separate laundry room with additional storage. Close to top-rated schools, multiple parks & trails, shopping, dining, public transit, and major highways, this is an exceptional chance to join this unbeatable close knit community! Don't miss it! (id:27476)

Property Highlights

MLS® Number
W12969944
Type
Single Family
Community Name
Rathwood
Maintenance Fee
601.79
Ownership Type
Condominium/Strata
Parking Space Total
2

Building

Building Type
Row / Townhouse
Square Footage
1400 - 1599 sqft
Bathrooms Total
3
Bedrooms Above Ground
3
Bedrooms Total
3
Amenities
Visitor Parking, Fireplace(s) Park, Public Transit, Schools
Exterior Finish
Brick, Wood
Fireplace Present
Yes
Basement Type
N/A (Finished)
Basement Features
Building Heating Type
Forced air
Heating Fuel
Natural gas
Building Cooling Type
Central air conditioning

Location

Learn more about this property
Listing provided by:
ROYAL LEPAGE REAL ESTATE SERVICES LTD.
MLS® number:
W12969944
Agent:
Julie King
*Indicates required field
Name is required
Email is required
Please enter a valid phone number (e.g., 416-111-1111).

Street Spotlight - For sale