21 - 1855 Dundas Street E, Mississauga, Ontario L4X 1M1

Listed for:
$26
0 beds
0 baths
Listed 6 days ago
21 - 1855 Dundas Street E, Mississauga, Ontario L4X 1M1

View all 4 photos

About

Dixie/427 Situated in a high-traffic location on Dundas between Hwy #427 and Dixie Rd, within a home furnishings complex opposite Bad Boy and Leon's Furniture, has 200 parking spots within the plaza, making it convenient for customers. surrounded by diverse retail offerings, including highly desired brands such as Metro, Winners, LCBO, Dollarama, Costco, Walmart, Go Station, and many more. Large flow of people and stable customer flow. Diverse Food offerings such as National chains like Tim Horton's, A&W, Harveys, and Starbucks. This further adds to the allure of this prime location. (id:27476)

Property Highlights

MLS® Number
W12984410
Type
Retail
Community Name
Dixie
Land Size
Unit=150.67 x 190.79 FT

Building

Square Footage
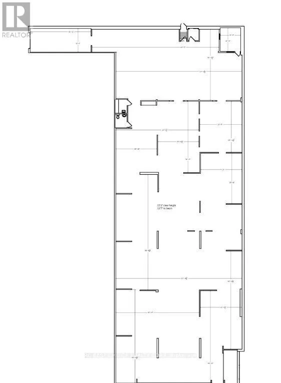
13249 sqft
Amenities
Highway, Public Transit
Fireplace Present
No
Basement Type
Basement Features
Building Heating Type
Forced air
Heating Fuel
Natural gas
Building Cooling Type
Fully air conditioned

Utilities

Water
Municipal water

Location

Learn more about this property
Listing provided by:
RC BEST CHOICE REALTY CORP
MLS® number:
W12984410
Agent:
Rex Cheng
*Indicates required field
Name is required
Email is required
Please enter a valid phone number (e.g., 416-111-1111).