104 - 1515 Lakeshore Road E, Mississauga, Ontario L5E 3E2

Listed for:
$3,500
4 beds
2 baths
Listed 2 days ago
Apartment for rent: 104 - 1515 Lakeshore Road E, Mississauga, Ontario L5E 3E2

View all 28 photos

About

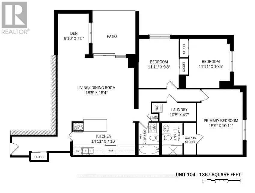
Lakeshore Road E & Dixie Road This absolutely stunning, corner-style suite spans approximately 1,310 square feet of meticulously designed living space. A rare 3-bedroom plus den configuration, offering the versatility of a private home office or guest wing. A bespoke, open-concept family kitchen featuring stature-height cabinetry with glass inserts. It flows effortlessly into living area, perfect for entertaining. Includes two full bathrooms and a generous laundry/storage suite to ensure a clutter-free environment. Features two side-by-side parking spaces, a coveted luxury in the city. Outdoor basketball and tennis courts. Nestled directly across from the lush expanses of Marie Curtis Park, residents enjoy immediate access to the tranquil Etobicoke Creek and the majestic shores of Lake Ontario. Explore miles of scenic waterfront walking trails and manicured parklands. A short stroll to the Long Branch GO Station and TTC provides seamless access to the downtown core. Located mere minutes from the QEW, 401, and 407, ensuring the entire GTA is within easy reach. (id:27476)

Property Highlights

MLS® Number
W12990008
Type
Single Family
Community Name
Lakeview
Ownership Type
Condominium/Strata
Parking Space Total
2

Building

Building Type
Apartment
Square Footage
1200 - 1399 sqft
Bathrooms Total
2
Bedrooms Above Ground
3
Bedrooms Total
4
Amenities
Exercise Centre, Recreation Centre, Visitor Parking, Party Room Park, Public Transit
Exterior Finish
Concrete
Fireplace Present
Yes
Basement Type
None
Basement Features
Building Heating Type
Forced air
Heating Fuel
Natural gas
Building Cooling Type
Central air conditioning

Location

Learn more about this property
Listing provided by:
SOTHEBY'S INTERNATIONAL REALTY CANADA
MLS® number:
W12990008
Agent:
Karen Law
*Indicates required field
Name is required
Email is required
Please enter a valid phone number (e.g., 416-111-1111).

Street Spotlight - For rent