60-62 - 3176 Ridgeway Drive, Mississauga, Ontario L5L 5S6

Listed for:
$1
0 beds
0 baths
Listed 3 days ago
Multi-Tenant Industrial for rent: 60-62 - 3176 Ridgeway Drive, Mississauga, Ontario L5L 5S6

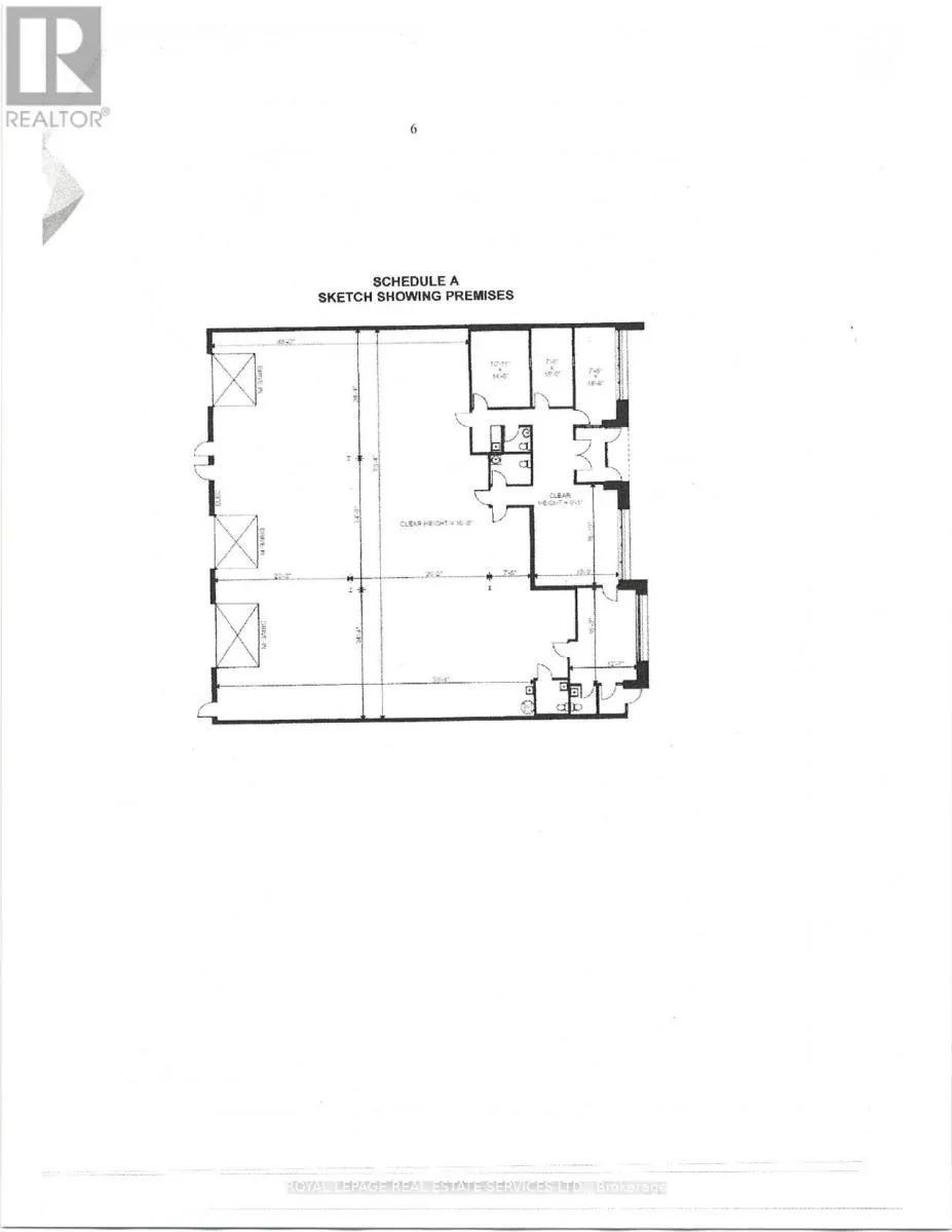
View all 3 photos

About

Ridgeway Drive / Dundas Street W . (id:27476)

Property Highlights

MLS® Number
W12993142
Type
Industrial
Community Name
Western Business Park

Building

Building Type
Multi-Tenant Industrial
Square Footage
5942 sqft
Fireplace Present
No
Basement Type
Basement Features
Building Heating Type
Forced air
Heating Fuel
Natural gas
Building Cooling Type
Partially air conditioned

Utilities

Water
Municipal water

Location

Learn more about this property
Listing provided by:
ROYAL LEPAGE REAL ESTATE SERVICES LTD.
MLS® number:
W12993142
Agent:
Mark Chapman
*Indicates required field
Name is required
Email is required
Please enter a valid phone number (e.g., 416-111-1111).