303 - 5150 Winston Churchill Boulevard, Mississauga, Ontario L5M 0P1

Listed for:
$2,550
2 beds
2 baths
Listed 1 day ago
Apartment for rent: 303 - 5150 Winston Churchill Boulevard, Mississauga, Ontario L5M 0P1

View all 21 photos

About

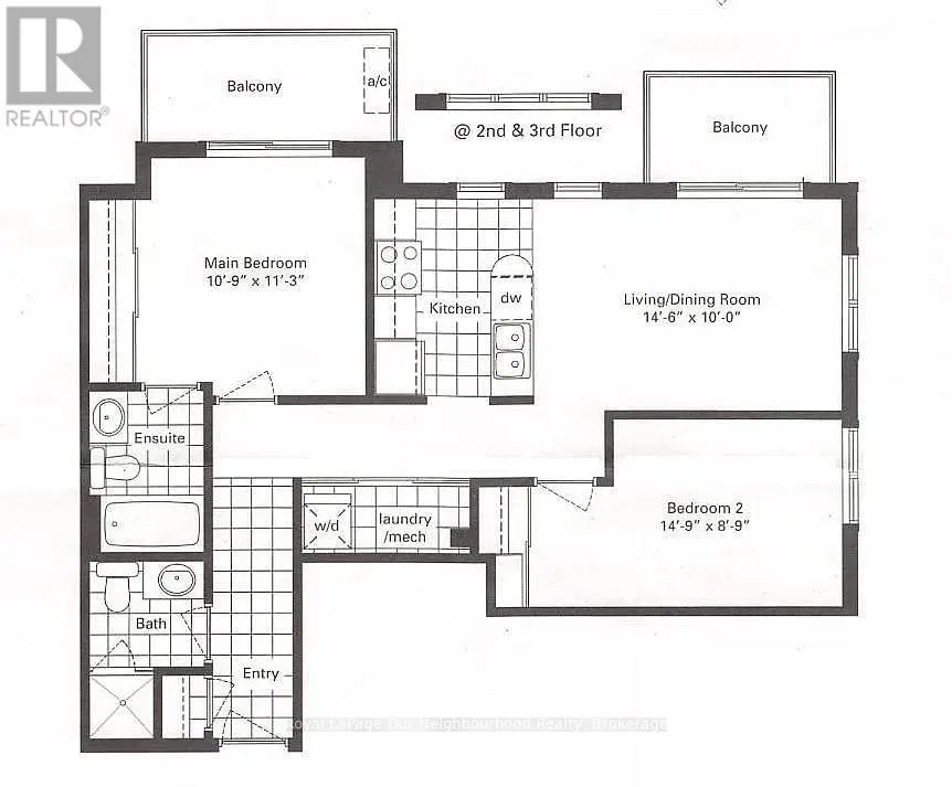
Winston Churchill/Erin centre Welcome to Unit 303 at 5150 Winston Churchill Boulevard, a bright and modern two-bedroom, two-bathroom condo townhouse in the highly sought-after Churchill Meadows community. This home offers an excellent blend of space, comfort, and convenience, making it ideal for professionals, couples, or small families. The suite features a spacious open-concept layout with seamless living, dining, and kitchen areas filled with abundant natural light. The modern kitchen is equipped with stainless steel appliances, including a fridge, stove, dishwasher, and microwave. Both bedrooms are generously sized, including a primary suite with a three-piece ensuite. Enjoy two private balconies, one off the living room and another from the primary bedroom, providing great outdoor space. The unit also includes in-suite laundry with a washer and dryer for added convenience. A partially furnished option is available, or the unit can be provided unfurnished if preferred. One secure underground parking space is included.Located in a prime Churchill Meadows address, this home is close to public transit with quick access to major bus routes and is commuter-friendly with easy connections to Highways 403, 407, and the QEW. Shopping, dining, and everyday essentials are nearby, including Erin Mills Town Centre, grocery stores, cafs, and restaurants. The area is surrounded by parks, trails, and community amenities and is situated within a family-friendly neighbourhood with access to top-rated schools. Utilities are extra, with hydro and gas approximately $80 to $100 per month depending on usage. Pets are welcome. Available immediately. This home offers modern comfort, functional outdoor space, and an unbeatable location. (id:27476)

Property Highlights

MLS® Number
W13003664
Type
Single Family
Community Name
Churchill Meadows
Ownership Type
Condominium/Strata
Parking Space Total
1

Building

Building Type
Apartment
Square Footage
800 - 899 sqft
Bathrooms Total
2
Bedrooms Above Ground
2
Bedrooms Total
2
Amenities
Recreation Centre, Visitor Parking
Exterior Finish
Brick
Fireplace Present
No
Basement Type
None
Basement Features
Building Heating Type
Forced air
Heating Fuel
Natural gas
Building Cooling Type
Central air conditioning

Location

Learn more about this property
Listing provided by:
Royal LePage Our Neighbourhood Realty
MLS® number:
W13003664
Agent:
Gary Hibbert
*Indicates required field
Name is required
Email is required
Please enter a valid phone number (e.g., 416-111-1111).