2 - 1591 South Parade Court, Mississauga, Ontario L5M 6G1

Listed for:
$689,900
3 beds
2 baths
Listed 3 days ago
Row / Townhouse for rent: 2 - 1591 South Parade Court, Mississauga, Ontario L5M 6G1

View all 33 photos

About

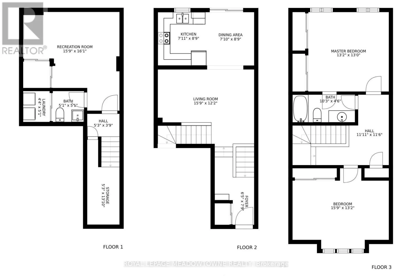
Creditview Rd & Eglinton Ave W Welcome to this beautifully updated townhouse tucked into one of Mississauga's mostsought-after pockets. Perfectly positioned at the end of a quiet court, this home offersexceptional convenience-just minutes to Hwys 403/401, Square One, and the GO Station.Freshly painted throughout, the main floor features an open-concept living room and a brightdining area overlooking the backyard. The modern kitchen is equipped with stainless steelappliances, sleek quartz countertops, and a stylish backsplash.The upper level showcases two massive king-sized bedrooms-the second bedroom is impressivelylarge, matching the scale of the primary.The finished lower-level recreation room adds valuable extra living space; a versatile flexspace easily converts into a third bedroom, home office, or gym to suit your lifestyle. Thegarage includes a clever storage loft for added functionality. Outdoors, unwind under yourprivate gazebo or enjoy the neighbourhood park just steps away. Visitor parking is convenientlyclose.A true turn-key opportunity in a quiet, family-friendly community. (id:27476)

Property Highlights

MLS® Number
W13044938
Type
Single Family
Community Name
East Credit
Maintenance Fee
409.41
Ownership Type
Condominium/Strata
Parking Space Total
2

Building

Building Type
Row / Townhouse
Storeys
2.00
Square Footage
1000 - 1199 sqft
Bathrooms Total
2
Bedrooms Above Ground
2
Bedrooms Total
3
Amenities
Golf Nearby, Hospital, Park
Exterior Finish
Brick, Shingles
Fireplace Present
No
Basement Type
N/A (Finished)
Basement Features
Building Heating Type
Forced air
Heating Fuel
Natural gas
Building Cooling Type
Central air conditioning

Location

Learn more about this property
Listing provided by:
ROYAL LEPAGE MEADOWTOWNE REALTY
MLS® number:
W13044938
Agent:
Emerson Vivas Zambrano
*Indicates required field
Name is required
Email is required
Please enter a valid phone number (e.g., 416-111-1111).

Street Spotlight - For sale