2 Frank Davis Street, Mississippi Mills, Ontario K0A 1A0

Listed for:
$179,900
0 beds
0 baths
Listed 277 days ago
2 Frank Davis Street, Mississippi Mills, Ontario K0A 1A0

View all 17 photos

About

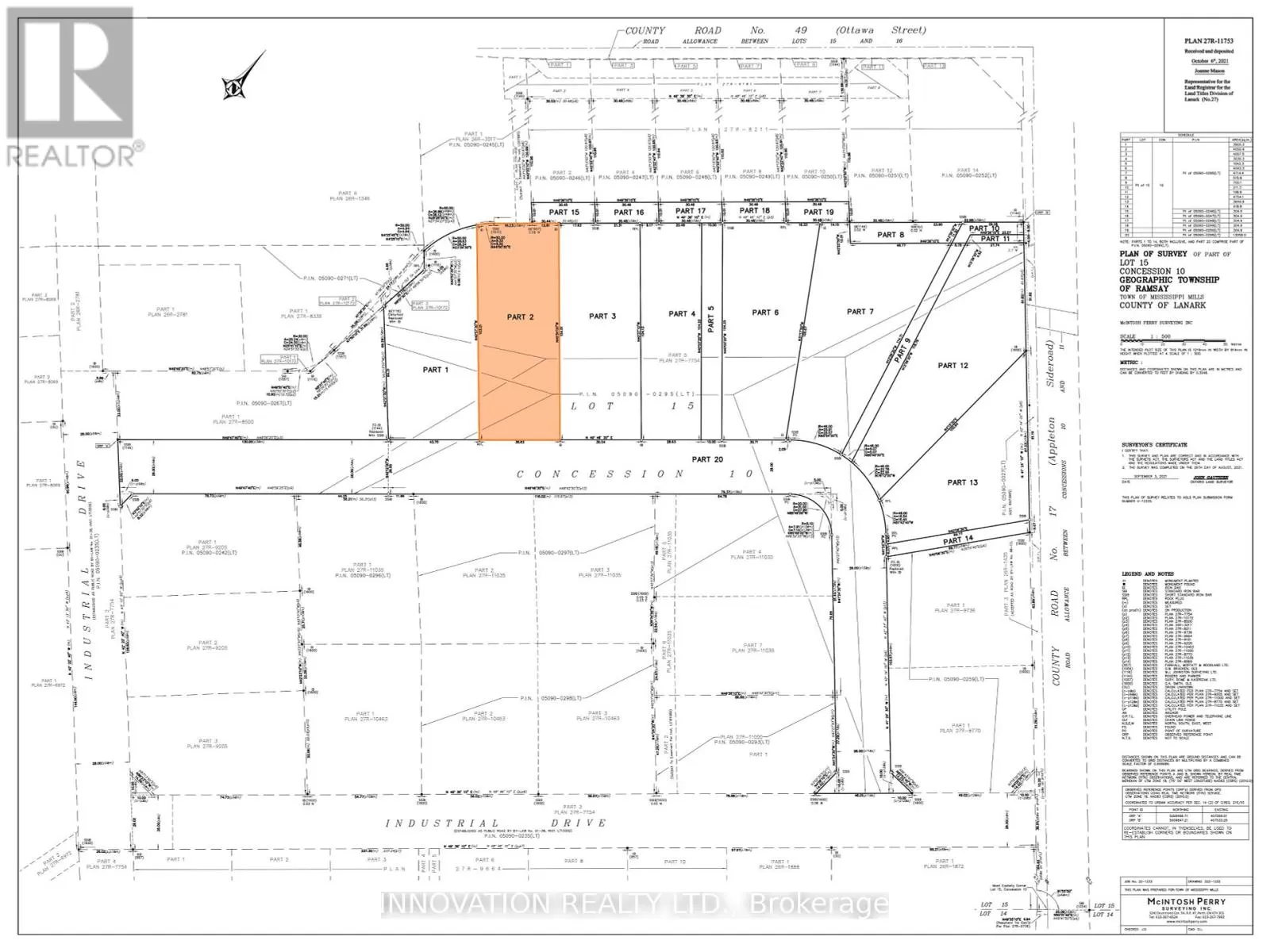
Cross Streets: Ottawa Street to Industrial to Frank Davis. ** Directions: Industrial to Frank Davis. Outstanding opportunity. Prime Business Park lots in the Friendly Town of Almonte. Located in Mississippi Mills these newly created lots range in size from approx. 1 acre to 1.48 acres & offer a blank slate to build what you need to grow your business. The lands are branded Employment Lands (Zoned E1) & are being sold by the Municipality. Almonte is the perfect town to source and attract employees to help your business move to the next level. Located on the Mississippi River, Almonte is 20 Minutes to Kanata & 35 minutes to downtown Ottawa. Time to grow? Time to become part of the Almonte Business Community. (id:27476)

Property Highlights

MLS® Number
X12086049
Type
Vacant Land
Community Name
911 - Almonte
Land Size
126.74 x 338.61 FT ; 1

Building

Fireplace Present
No
Basement Type
Basement Features
Building Heating Type
Heating Fuel
Building Cooling Type

Utilities

Water
Municipal water

Location

Learn more about this property
Listing provided by:
INNOVATION REALTY LTD.
MLS® number:
X12086049
Agent:
Ian Graham
*Indicates required field
Name is required
Email is required
Please enter a valid phone number (e.g., 416-111-1111).

Street Spotlight - For sale