17 Main Street E, New Tecumseth, Ontario L0G 1A0

Listed for:
$449,000
0 beds
0 baths
Listed 186 days ago
17 Main Street E, New Tecumseth, Ontario L0G 1A0

View all 1 photos

About

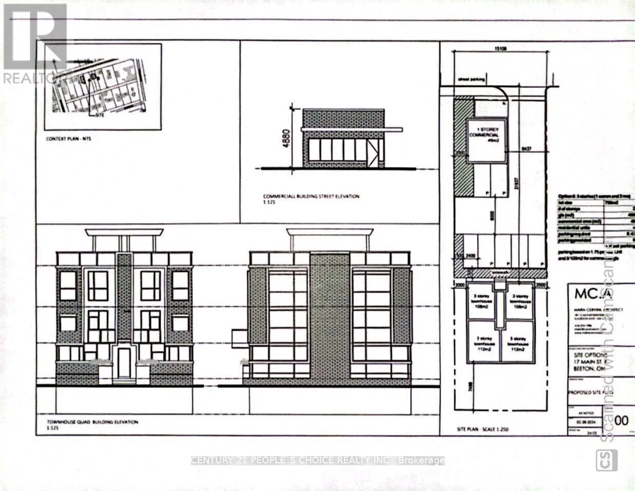
10th Sdrd & Main St (under power of sale)Nestled amidst a main artery lies a vacant lot, a canvas awaiting the strokes of architectural innovation. This prime piece of real estate spans a generous expanse, offering a tantalizing opportunity for a visionary entrepreneur or developer. At the forefront of this blank slate stands the promise of commerce, where a sleek and modern commercial unit can rise, its facade beckoning with possibilities. With ample space to showcase products or services, this commercial frontage holds the key to captivating the attention of passersby and attracting a steady stream of clientele. Yet, beyond the realm of commerce, lies a quieter enclave awaiting transformation. Towards the rear of the lot, a sanctuary of residential bliss emerges, offering a harmonious blend of urban convenience and suburban tranquility. Here, envisioned are four distinct residential units, each crafted with meticulous attention to detail and designed to epitomize modern comfort and luxury living. Pre-consult meeting is scheduled with the city Furthermore hundreds of homes are being built in the surrounding area, providing clientele for the commercial business. As the sun sets on the horizon, casting a golden hue upon the vacant lot, it becomes a beacon of promise and potential, a testament to the boundless opportunities that await those with the vision to seize them. In the heart of the city, amidst the rhythm of urban life, this vacant lot stands as a testament to the enduring spirit of innovation and transformation. It is not merely a piece of land but a canvas awaiting the strokes of architectural genius, ready to shape the landscape of tomorrow. (id:27476)

Property Highlights

MLS® Number
N12311872
Type
Vacant Land
Community Name
Beeton
Land Size
49 x 165 FT|under 1/2 acre

Building

Storeys
2.00
Square Footage
0 - 699 sqft
Fireplace Present
No
Basement Type
Basement Features
Building Heating Type
Heating Fuel
Building Cooling Type

Utilities

Water
Municipal water

Location

Learn more about this property
Listing provided by:
CENTURY 21 PEOPLE'S CHOICE REALTY INC.
MLS® number:
N12311872
Agent:
Muhammad A Siddiqi
*Indicates required field
Name is required
Email is required
Please enter a valid phone number (e.g., 416-111-1111).