1201 - 185 Deerfield Road, Newmarket, Ontario L3Y 0G7

Listed for:
$499,900
2 beds
2 baths
Listed 27 days ago
Apartment for rent: 1201 - 185 Deerfield Road, Newmarket, Ontario L3Y 0G7

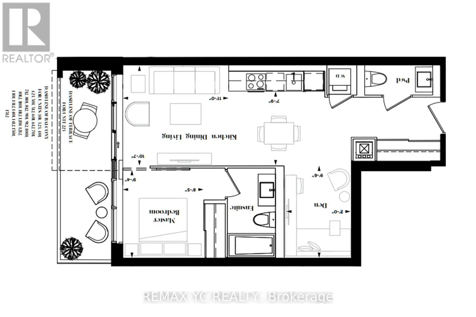
View all 15 photos

About

Yonge & Davis Ideally located in the heart of central Newmarket. 1 bedroom + den, 1.5-bath suite at The Davis Condos by Rose Corp with 643 sq. ft. of thoughtfully designed living space plus a private east-facing balcony, this bright and functional open-concept unit features 9 ft smooth ceilings, floor-to-ceiling windows, and luxury vinyl flooring throughout. The contemporary kitchen is equipped with stainless steel appliances, quartz countertops, custom cabinetry. The spacious den provides excellent flexibility and can be used as a second bedroom or home office. Enjoy unobstructed east-facing views from a high floor, one parking spot included, and access to premium building amenities such as a party room, guest suite, kids' play room, rooftop terrace, pet spa, visitor parking, and more. This green, energy-efficient building also offers advanced security. Steps to Upper Canada Mall, Newmarket GO Station, public transit, shops, restaurants, parks, schools, and medical facilities, with easy access to Hwy 404 & 400. (id:27476)

Property Highlights

MLS® Number
N12708830
Type
Single Family
Community Name
Central Newmarket
Maintenance Fee
606.63
Ownership Type
Condominium/Strata
Parking Space Total
1

Building

Building Type
Apartment
Square Footage
600 - 699 sqft
Bathrooms Total
2
Bedrooms Above Ground
1
Bedrooms Total
2
Amenities
Security/Concierge, Exercise Centre, Party Room, Visitor Parking Hospital, Park, Public Transit, Schools
Exterior Finish
Concrete
Fireplace Present
No
Basement Type
None
Basement Features
Building Heating Type
Heat Pump, Not known
Heating Fuel
Electric
Building Cooling Type
Central air conditioning

Location

Learn more about this property
Listing provided by:
REMAX YC REALTY
MLS® number:
N12708830
Agent:
Jay Kim
*Indicates required field
Name is required
Email is required
Please enter a valid phone number (e.g., 416-111-1111).

Street Spotlight - For sale