303 - 390 Davis Drive, Newmarket, Ontario L3Y 7T8

Listed for:
$16
0 beds
0 baths
Listed 6 days ago
Offices for rent: 303 - 390 Davis Drive, Newmarket, Ontario L3Y 7T8

View all 24 photos

About

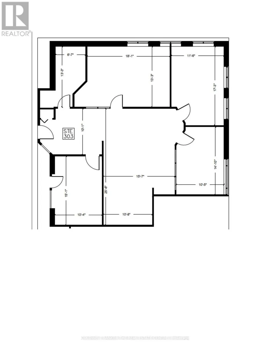
Cross Streets: Davis/Main. ** Directions: South of Davis / West of Main. Discover this well-appointed office suite in a professionally managed building at the prime intersection of Davis Drive & Main Street. Offering 1,701 sq.ft. of rentable area, unit 303 is ideal for a range of professional uses. The layout includes three private offices, a spacious boardroom, a kitchenette with a storage area, a large open-concept bullpen with ample room for workstations, and a welcoming reception area to greet clients. Located on the third floor, this unit benefits from shared men's and women's washrooms conveniently located on the same level. The building boasts excellent access to public transit, including the GO Train, and major highways, making commuting seamless for both clients and staff. Additional rent (TMO): Includes taxes, maintenance, operating costs, and tenant utilities (heat & hydro). Take advantage of this opportunity to position your business in one of Newmarket's most accessible and professional office settings. Available immediately. (id:27476)

Property Highlights

MLS® Number
N12984344
Type
Office
Community Name
Central Newmarket
Land Size
198.43 x 122.05 FT

Building

Building Type
Offices
Square Footage
1701 sqft
Fireplace Present
No
Basement Type
Basement Features
Building Heating Type
Forced air
Heating Fuel
Natural gas
Building Cooling Type
Fully air conditioned

Utilities

Water
Municipal water

Location

Learn more about this property
Listing provided by:
COLDWELL BANKER THE REAL ESTATE CENTRE
MLS® number:
N12984344
Agent:
Darcy Toombs
*Indicates required field
Name is required
Email is required
Please enter a valid phone number (e.g., 416-111-1111).