302 - 7277 Wilson Crescent, Niagara Falls, Ontario L2G 4R8

Listed for:
$545,000
2 beds
3 baths
Listed 54 days ago
Row / Townhouse for rent: 302 - 7277 Wilson Crescent, Niagara Falls, Ontario L2G 4R8

View all 38 photos

Learn more about this property
Listing provided by:
HOUSESIGMA INC.
MLS® number:
X12391048
Agent:
Ashwin Gandhi
*Indicates required field
Name is required
Email is required
Please enter a valid phone number (e.g., 416-111-1111).

About

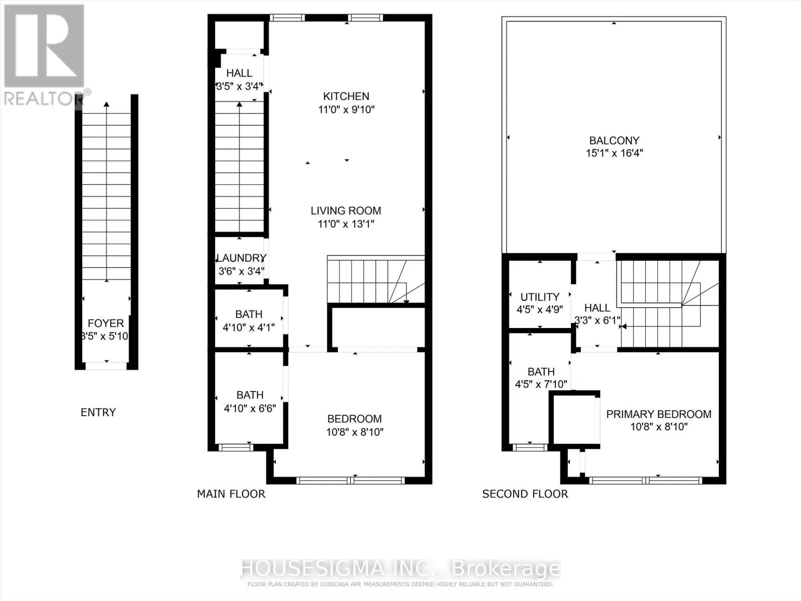
Cross Streets: Wilson Crescent and Mcleod Road. ** Directions: On the south side of McLeod Just before Wilson Crescent. Welcome to The Boho in Niagara Falls! This brand new 2-bedroom, 2.5-bathroom stacked townhouse in an excellent neighbourhood, features 9 ceilings, quartz countertops, stainless steel appliances, and a bright open-concept layout. Enjoy your own private rooftop terrace with 250 sq. ft. of outdoor living space and 2 parking spots included. Conveniently located minutes from the QEW, Costco, shopping centres, schools, golf courses, and the world-famous Niagara Falls. This property defines modern living in a prime location with easy access to everything you could possibly need. (id:27476)

Property Highlights

MLS® Number
X12391048
Type
Single Family
Community Name
220 - Oldfield
Maintenance Fee
273.41
Ownership Type
Condominium/Strata
Parking Space Total
2

Building

Building Type
Row / Townhouse
Square Footage
700 - 799 sqft
Bathrooms Total
3
Bedrooms Above Ground
2
Bedrooms Total
2
Exterior Finish
Vinyl siding
Fireplace Present
No
Basement Type
None
Basement Features
Building Heating Type
Heat Pump, Not known
Heating Fuel
Electric
Building Cooling Type
Central air conditioning

Location