3662 Cartier Drive, Niagara Falls, Ontario L2G 6P4

Listed for:
$629,900
4 beds
2 baths
Listed 32 days ago
House for rent: 3662 Cartier Drive, Niagara Falls, Ontario L2G 6P4

View all 31 photos

Learn more about this property
Listing provided by:
COSMOPOLITAN REALTY
MLS® number:
X12470414
Agent:
Ying Wang
*Indicates required field
Name is required
Email is required
Please enter a valid phone number (e.g., 416-111-1111).

About

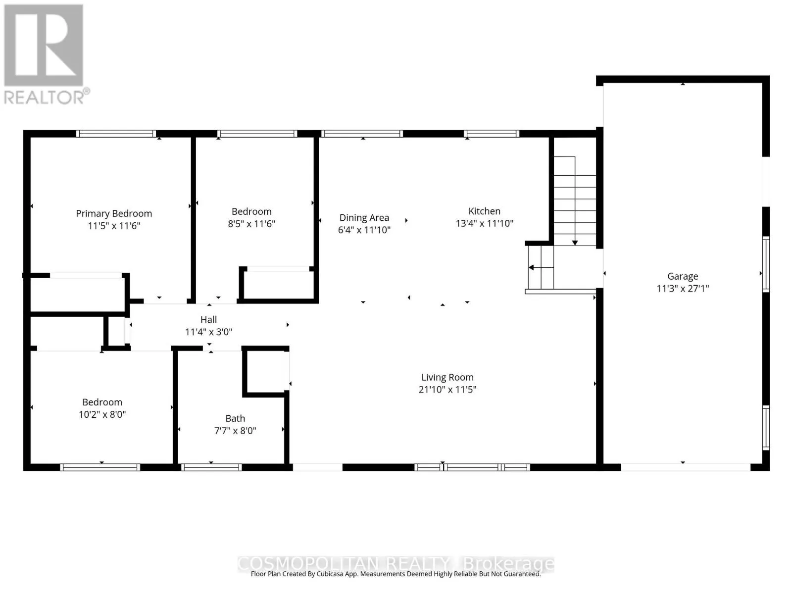
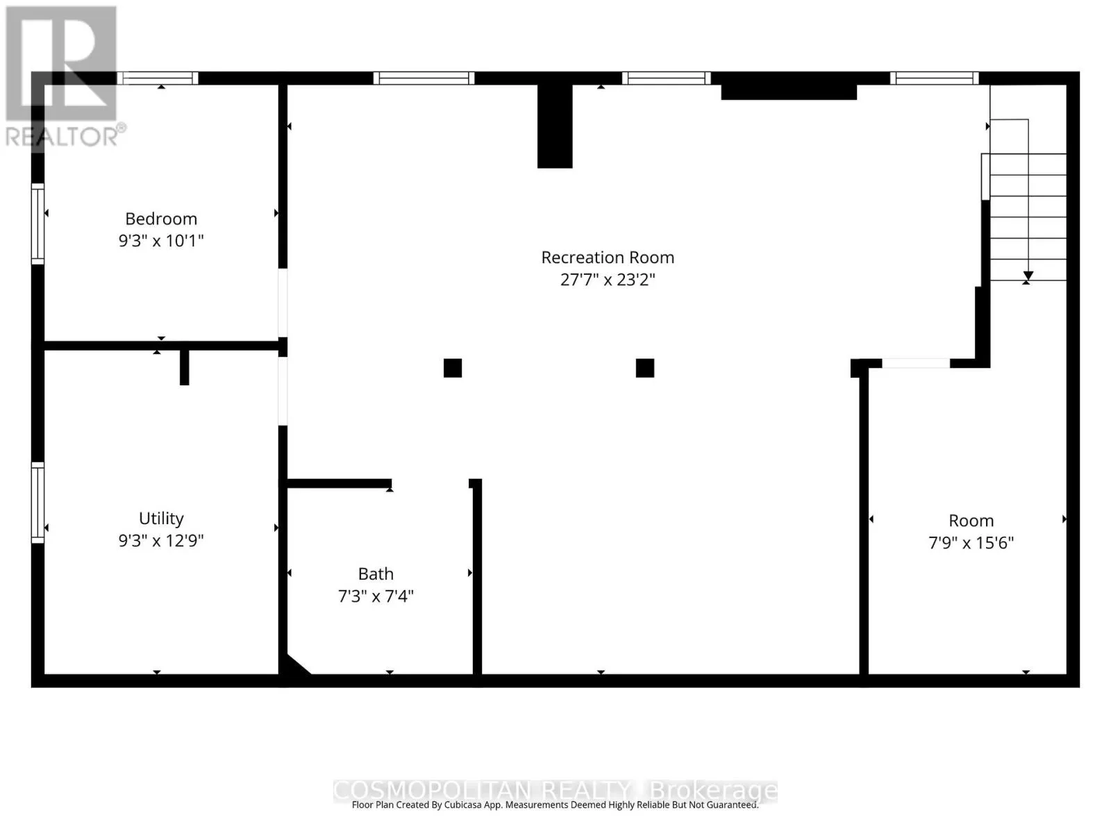
Cross Streets: Champlain Dr/Cartier Dr. ** Directions: From Main St take Oliver St, continue on Champlain Dr, then turn onto Cartier Dr to reach 3662 Cartier Dr. Move-in ready and recently refreshed, this sun-filled bungalow sits on a spacious 51' by 120' corner lot in peaceful Niagara Falls. Offering 1,107 sq. ft. above ground, it perfectly blends comfort, space, and flexibility.The updated kitchen features timeless white shaker cabinets, stainless-steel appliances (including a 2025 refrigerator), and modern pot lights that carry throughout the main level. A bright living room and three bedrooms offer easy one-level living for families or downsizers.The built-in garage with inside entry adds everyday convenience, and the finished basement expands your options with a bedroom featuring a window and a second flexible room ideal for an office, gym, or guest space. With pot lights throughout and space to add a second kitchen, it's ideal for multi-generational families or future income potential (buyer to verify zoning and permits).Outside, the large yard feels like a double backyard - perfect for kids, pets, or your next outdoor design project. Major updates include roof (2020) and newer mechanicals, ensuring peace of mind. Walk or jog along the Niagara Parkway and see the mist from the Falls, launch a kayak on the Welland River, or golf at Legends - all minutes away. With easy access to Costco, QEW, schools, parks, and the upcoming Niagara South Hospital (2028), this is relaxed living with future value built in. A great opportunity for those seeking move-in comfort, modern updates, and long-term potential in one of Niagara's most family-friendly areas. (id:27476)

Property Highlights

MLS® Number
X12470414
Type
Single Family
Community Name
223 - Chippawa
Ownership Type
Freehold
Land Size
51 x 120 FT|under 1/2 acre
Parking Space Total
4

Building

Building Type
House
Storeys
1.00
Square Footage
700 - 1100 sqft
Bathrooms Total
2
Bedrooms Above Ground
3
Bedrooms Total
4
Amenities
Park, Schools
Exterior Finish
Brick Facing, Vinyl siding
Fireplace Present
No
Basement Type
Full (Finished)
Basement Features
Building Heating Type
Forced air
Heating Fuel
Natural gas
Building Cooling Type
Central air conditioning

Utilities

Water
Municipal water
Utility Sewer
Sanitary sewer

Room Layout

Bathroom
Basement
2.23 m x 2.6 m
Laundry room
Basement
3.89 m x 2.82 m
Recreational, Games room
Basement
8.41 m x 7.06 m
Office
Basement
3.35 m x 2.2 m
Bedroom
Basement
2.82 m x 3.07 m
Living room
Main level
3.5 m x 6.85 m
Dining room
Main level
1.93 m x 3.61 m
Kitchen
Main level
3.65 m x 4.95 m
Bedroom
Main level
3.5 m x 3.5 m
Bedroom
Main level
2.59 m x 3.2 m
Bedroom
Main level
3.1 m x 2.44 m
Bathroom
Main level
2.31 m x 2.44 m

Location