6390 Huggins Street Unit# 209, Niagara Falls, Ontario L2J 1H1

Listed for:
$350,000
2 beds
1 baths
Listed 34 days ago
Apartment for rent: 6390 Huggins Street Unit# 209, Niagara Falls, Ontario L2J 1H1

View all 31 photos

About

HIGHLY SOUGHT AFTER STAMFORD PLACE! Fantastic Stamford Centre location for this beautifully updated and meticulously maintained 2 bedroom corner unit. This unit features 2 generous sized bedrooms with big & bright windows, updated 4-piece bath with updated tub & shower, open concept living room, updated eat-in kitchen and over sized balcony with west facing views. This unit offers ductless air conditioning, 1 parking space included and 1 locker included. Monthly condo fees include hot water heating, water, common elements, building insurance and parking. Building amenities include party room and private gym area. All kitchen appliances plus in-suite stackable washer & dryer included. You can pick your closing date! Walking distance to groceries, restaurants, shopping, schools, parks and easy access to the QEW highway and other amenities. (id:27476)

Property Highlights

MLS® Number
40804228
Type
Single Family
Maintenance Fee
759.23
Ownership Type
Condominium
Land Size
Unknown
Parking Space Total
1

Building

Building Type
Apartment
Storeys
1.00
Square Footage
900 sqft
Bathrooms Total
1
Bedrooms Above Ground
2
Bedrooms Total
2
Amenities
Party Room Public Transit, Schools, Shopping
Exterior Finish
Stucco
Fireplace Present
No
Basement Type
None
Basement Features
Building Heating Type
Hot water radiator heat
Heating Fuel
Building Cooling Type
Wall unit

Utilities

Water
Municipal water
Utility Sewer
Municipal sewage system

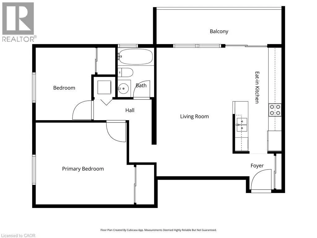
Room Layout

4pc Bathroom
Main level
Measurements not available
Porch
Main level
18'9'' x 4'10''
Bedroom
Main level
10'10'' x 8'3''
Primary Bedroom
Main level
12'5'' x 13'8''
Eat in kitchen
Main level
15'5'' x 7'0''
Living room
Main level
11'5'' x 19'2''
Foyer
Main level
6'2'' x 5'2''

Location

Learn more about this property
Listing provided by:
RE/MAX Niagara Realty Ltd.
MLS® number:
40804228
Agent:
Kevin Gibson
*Indicates required field
Name is required
Email is required
Please enter a valid phone number (e.g., 416-111-1111).

Street Spotlight - For sale