8424 Mulberry Drive, Niagara Falls, Ontario L2H 0K4

Listed for:
$749,000
3 beds
3 baths
Listed 41 days ago
House for rent: 8424 Mulberry Drive, Niagara Falls, Ontario L2H 0K4

View all 37 photos

About

Cross Streets: McLeod Rd & Kalar Rd. ** Directions: Mcleod Rd. to Kalar Rd to Mulberry Dr. Rare 3-bedroom bungalow on a premium 49-ft lot - a true find. Meticulously maintained with storybook grounds featuring perennial gardens, tranquil water features, vine-covered canopies, and a dedicated BBQ area - perfect for entertaining.The home offers a bright, open-concept kitchen and living space, with a patio walk-out from the breakfast nook to a spacious deck and gazebo. Enjoy oversized windows, a functional 2+1 bedroom layout, three full baths, main-floor laundry, and an attached two-car garage.The fully finished basement (2024) features a large recreation room ideal for family gatherings or entertaining, along with flexible space for a gym, theatre, office, or games area. A luxurious basement bathroom adds a spa-like touch, while the purifying water treatment system provides fresh, drink-from-the-tap water. Ideally located in a growing community, just steps to schools, parks, and shopping - and only 5 minutes to the QEW. (id:27476)

Property Highlights

MLS® Number
X12803674
Type
Single Family
Community Name
222 - Brown
Ownership Type
Freehold
Land Size
49.2 x 98.4 FT
Parking Space Total
4

Building

Building Type
House
Storeys
1.00
Square Footage
1500 - 2000 sqft
Bathrooms Total
3
Bedrooms Above Ground
2
Bedrooms Total
3
Exterior Finish
Vinyl siding
Fireplace Present
No
Basement Type
Full (Finished)
Basement Features
Building Heating Type
Forced air
Heating Fuel
Natural gas
Building Cooling Type
Central air conditioning

Utilities

Water
Municipal water
Utility Sewer
Sanitary sewer

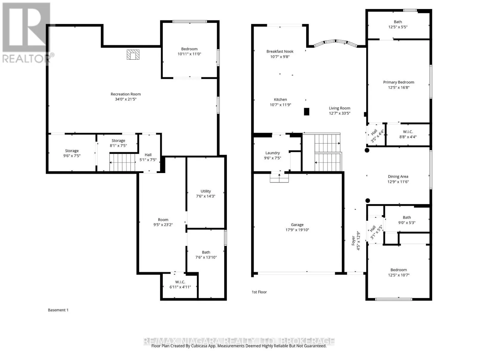
Room Layout

Utility room
Basement
4.34 m x 2.29 m
Bedroom 3
Basement
3.33 m x 3.35 m
Recreational, Games room
Basement
10.36 m x 6.53 m
Office
Basement
7.06 m x 2.87 m
Living room
Main level
10.19 m x 3.85 m
Kitchen
Main level
3.23 m x 3.58 m
Eating area
Main level
3.23 m x 2.95 m
Primary Bedroom
Main level
5.08 m x 3.78 m
Laundry room
Main level
2.9 m x 2.26 m
Dining room
Main level
3.89 m x 3.51 m
Bedroom 2
Main level
3.78 m x 3.23 m

Location

Learn more about this property
Listing provided by:
RE/MAX NIAGARA REALTY LTD, BROKERAGE
MLS® number:
X12803674
Agent:
Tony Gigliotti
*Indicates required field
Name is required
Email is required
Please enter a valid phone number (e.g., 416-111-1111).