5853 Mcleod Road, Niagara Falls, Ontario L2G 3E5

Listed for:
$2,500
3 beds
2 baths
Listed 27 days ago
House for rent: 5853 Mcleod Road, Niagara Falls, Ontario L2G 3E5

View all 37 photos

About

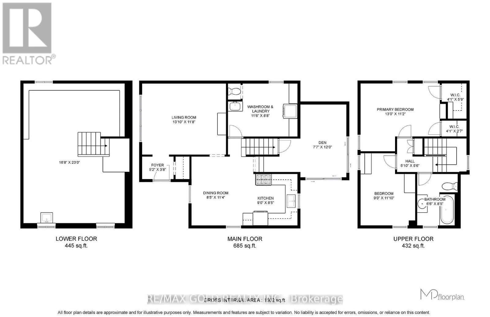
Mcleod & Drummond Welcome to this well-maintained detached in the heart of Niagara Falls, situated on a rare 60.15 x 144.38 ft lot, offering excellent potential for builders, investors, or end users who appreciate extra outdoor space and future possibilities. This home features 2 bedrooms plus a den that can easily be converted into a third bedroom, and two bathrooms. The primary bedroom includes a walk-in closet, while the functional layout offers separate living and dining rooms. The kitchen is equipped with stainless steel appliances and overlooks the fully fenced backyard, where you can relax and enjoy the hot tub (2 years old). The home offers 1,117 sq ft on the main floor, no carpet throughout, furnace (2017), air conditioner (1 year old), and an owned hot water heater, along with parking for up to5 vehicles. The unfinished basement has been professionally waterproofed with a transferable 25-year warranty and features a newly installed sump pump, providing peace of mind. Conveniently located close to shopping, schools, transit, and major routes including the Queen Elizabeth Way, this is a fantastic opportunity to Lease a solid home on a premium lot in a growing Niagara Falls location (id:27476)

Property Highlights

MLS® Number
X12851310
Type
Single Family
Community Name
217 - Arad/Fallsview
Ownership Type
Freehold
Parking Space Total
5

Building

Building Type
House
Storeys
1.50
Square Footage
1100 - 1500 sqft
Bathrooms Total
2
Bedrooms Above Ground
2
Bedrooms Total
3
Exterior Finish
Brick
Fireplace Present
No
Basement Type
Full
Basement Features
Building Heating Type
Forced air
Heating Fuel
Natural gas
Building Cooling Type
Central air conditioning

Utilities

Water
Municipal water
Utility Sewer
Sanitary sewer

Room Layout

Primary Bedroom
Second level
3.98 m x 3.4 m
Bedroom 2
Second level
3.63 m x 2.74 m
Foyer
Main level
1.58 m x 1.13 m
Living room
Main level
4.22 m x 3.57 m
Dining room
Main level
3.46 m x 2.57 m
Kitchen
Main level
2.76 m x 2.58 m
Den
Main level
3.66 m x 2.31 m

Location

Learn more about this property
Listing provided by:
RE/MAX GOLD REALTY INC.
MLS® number:
X12851310
Agent:
Hani Al Olabi
*Indicates required field
Name is required
Email is required
Please enter a valid phone number (e.g., 416-111-1111).