4446 Morrison Street, Niagara Falls, Ontario L2E 2B3

Listed for:
$629,000
0 beds
0 baths
Listed 15 days ago
4446 Morrison Street, Niagara Falls, Ontario L2E 2B3

View all 6 photos

About

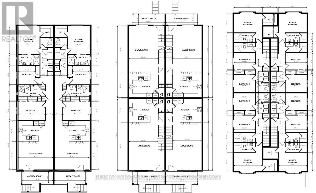
Cross Streets: Morrison and Saint Clair. ** Directions: Morrison Street north of Victoria Avenue. Rare Permit-Ready Multifamily Development Opportunity it is primed location walking distance to Niagara University- City of Niagara Buildings- the new GO Transit station and bridge to USA. FULLY APPROVED SITE PLAN with building permit ready for construction of a six-unit residential rental project consisting of two semi-deta ched buildings. Each building includes three spacious three-bedroom units, including basement apartments, designed to meet strong rental demand for larger family-oriented units.The approved development offers an excellent opportunity for investors or developers seeking a small-scale multifamily project with approvals already in place, significantly reducing development timelines and entitlement risk.Based on market rental estimates of approximately $2,200 per unit per month, the completed project may achieve gross annual rental income of approximately $158,400. Using standard vacancy and operating assumptions, the project presents the potential for strong long-term rental performance once stabilized. Buyers are advised to conduct their own due diligence regarding rents, operating costs, construction costs, and development feasibility.This is a unique opportunity to acquire a fully entitled six-unit rental development in a growing market with strong demand for larger rental units. (id:27476)

Property Highlights

MLS® Number
X12893760
Type
Vacant Land
Community Name
210 - Downtown
Land Size
50 x 150 FT

Building

Fireplace Present
No
Basement Type
Basement Features
Building Heating Type
Heating Fuel
Building Cooling Type

Location

Learn more about this property
Listing provided by:
RE/MAX NIAGARA REALTY LTD, BROKERAGE
MLS® number:
X12893760
Agent:
Shirzad Hamadamin
*Indicates required field
Name is required
Email is required
Please enter a valid phone number (e.g., 416-111-1111).