5703 Osprey Avenue, Niagara Falls, Ontario L2H 0M2

Listed for:
$914,800
3 beds
4 baths
Listed 8 days ago
House for rent: 5703 Osprey Avenue, Niagara Falls, Ontario L2H 0M2

View all 43 photos

About

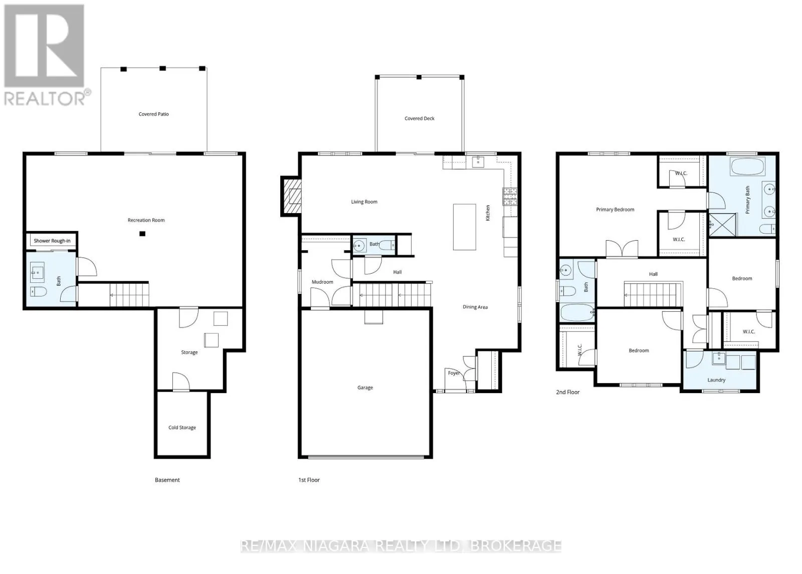
Cross Streets: Garner Road and Lundy's Lane. ** Directions: Hendershot to Osprey. FULLY FINISHED WALK-OUT BASEMENT! Located in Niagara Falls' desirable south end, 5703 Osprey Ave offers approximately 2,900 sq. ft. of finished living space in a .in a stylish and functional 2-storey family home. With 3 bedrooms, 4 bathrooms, a double car garage, and parking for 6 vehicles, this home is designed for real life. The main floor offers a practical layout with bright, polished living spaces, a convenient mud room, and a kitchen with a walk-out to a covered deck, creating an easy connection between indoor living and outdoor enjoyment. Upstairs, all three bedrooms feature walk-in closets, while the primary suite offers his-and-hers walk-in closets and a spacious 5-piece ensuite with a tiled glass shower and soaker tub. Second-floor laundry adds even more everyday convenience.The finished walk-out basement is the feature that truly sets this home apart. Brightened by windows and offering direct access to the concrete patio, it provides the kind of additional living space that can adapt to your needs, whether for family time, entertaining, or a play area. There is also plenty of storage, a cold cellar, and a bathroom with a shower rough-in tucked into the closet for future potential. Outside, the covered deck and lower patio extend the living space and create a great setup for relaxing or entertaining. Close to Costco, Walmart, grocery stores, restaurants, and other everyday amenities, this move-in ready home offers comfort, function, and a location that makes daily life easier. Please note, location of above ground pool will be sodded in late spring. (id:27476)

Property Highlights

MLS® Number
X12914738
Type
Single Family
Community Name
219 - Forestview
Ownership Type
Freehold
Land Size
43 x 111.5 FT
Parking Space Total
6

Building

Building Type
House
Storeys
2.00
Square Footage
2000 - 2500 sqft
Bathrooms Total
4
Bedrooms Above Ground
3
Bedrooms Total
3
Exterior Finish
Brick, Vinyl siding
Fireplace Present
Yes
Basement Type
N/A (Finished)
Basement Features
Walk out
Building Heating Type
Forced air
Heating Fuel
Natural gas
Building Cooling Type
Central air conditioning

Utilities

Water
Municipal water
Utility Sewer
Sanitary sewer

Room Layout

Primary Bedroom
Second level
4.27 m x 4.5 m
Bedroom 2
Second level
3.12 m x 3.05 m
Bedroom 3
Second level
3.61 m x 3.23 m
Laundry room
Second level
3.25 m x 1.83 m
Recreational, Games room
Basement
9.39 m x 6.57 m
Bathroom
Basement
2.38 m x 2.16 m
Utility room
Basement
3.5 m x 3.69 m
Cold room
Basement
2.75 m x 2.16 m
Foyer
Main level
1.98 m x 1.68 m
Dining room
Main level
3.81 m x 3.51 m
Kitchen
Main level
4.7 m x 4.27 m
Living room
Main level
5 m x 3.43 m
Mud room
Main level
3.28 m x 2.13 m
Bathroom
Main level
1.98 m x 0.86 m

Location

Learn more about this property
Listing provided by:
RE/MAX NIAGARA REALTY LTD, BROKERAGE
MLS® number:
X12914738
Agent:
Clarissa Rigas
*Indicates required field
Name is required
Email is required
Please enter a valid phone number (e.g., 416-111-1111).

Street Spotlight - For sale