3987 Montcalm Crescent, Niagara Falls, Ontario L2G 6L9

Listed for:
$559,900
4 beds
2 baths
Listed 5 days ago
House for rent: 3987 Montcalm Crescent, Niagara Falls, Ontario L2G 6L9

View all 46 photos

About

Cross Streets: Drake. ** Directions: Lyons Creek Rd to Sodom, left on Welland, Right on Drake, Left on Montcalm. This brick bungalow, located in the quaint Village of Chippawa, is just a short walk to the boat launch park on the Welland River, or as the locals like to call it...the Crick. The garage has been converted into another room which could be used as a main floor family room or a 4th bedroom or it could be converted back to a garage depending on your needs. The 70x120 lot with it's mature trees makes a beautiful private backyard with a separate entrance that goes straight down to the partially finished basement. There are 2 bathrooms and the appliances are included. There is even a hook up for a gas stove behind the current electric stove for those "chef" type people. This home has been well loved and updated over the years. They include soffits facia and eaves, roof including the wood under the shingles, windows, blown in insulation in the attic. There is a reverse osmosis system and water softener. The rec room has a wet bar which makes it convenient for the plumbing of an extra kitchen. Four years ago the wood porch deck as well as the front door, screen door and upstairs inside doors were replaced. There is also a gas hook up for the bbq in the backyard and a gas fireplace in the rec room. This home has great bones and in a fabulous area. Great for the retiree or first time buyer or even to convert into a separate unit for the inlaws when they come to visit. Let your imagination lead you. This is a great house!! And the dog will love the fenced in backyard...the kids will like it too :) (id:27476)

Property Highlights

MLS® Number
X12929568
Type
Single Family
Community Name
223 - Chippawa
Ownership Type
Freehold
Land Size
70 x 120 FT
Parking Space Total
4

Building

Building Type
House
Storeys
1.00
Square Footage
1100 - 1500 sqft
Bathrooms Total
2
Bedrooms Above Ground
3
Bedrooms Total
4
Amenities
Fireplace(s)
Exterior Finish
Brick
Fireplace Present
Yes
Basement Type
N/A (Partially finished), N/A
Basement Features
Separate entrance
Building Heating Type
Forced air
Heating Fuel
Natural gas
Building Cooling Type
Central air conditioning

Utilities

Water
Municipal water
Utility Sewer
Sanitary sewer

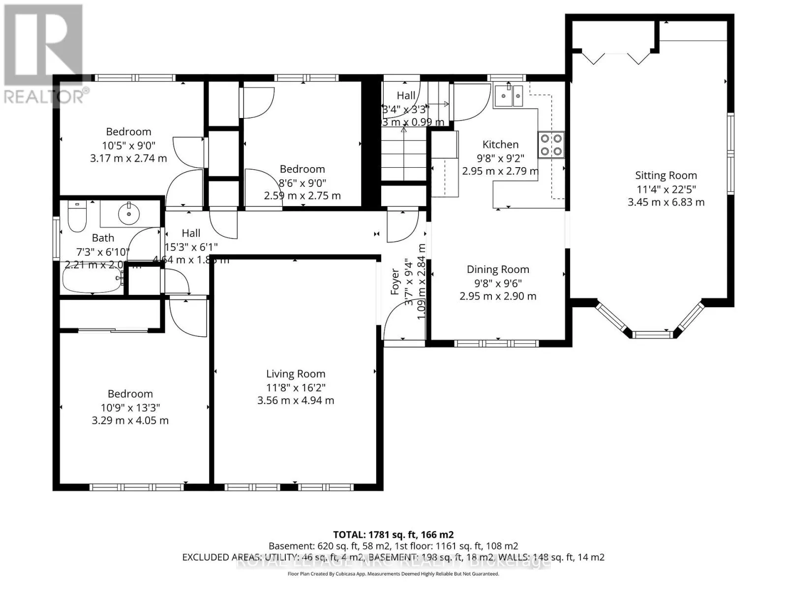
Room Layout

Recreational, Games room
Basement
21.4 m x 14 m
Bedroom
Basement
14.8 m x 13.7 m
Living room
Ground level
16.2 m x 11.8 m
Kitchen
Ground level
9.8 m x 9.2 m
Family room
Ground level
22.5 m x 11.4 m
Bedroom
Ground level
13.3 m x 10.9 m
Bedroom 2
Ground level
10.5 m x 9 m
Bedroom 3
Ground level
9 m x 8.6 m

Location

Learn more about this property
Listing provided by:
ROYAL LEPAGE NRC REALTY
MLS® number:
X12929568
Agent:
Marie M Nobes
*Indicates required field
Name is required
Email is required
Please enter a valid phone number (e.g., 416-111-1111).