31 Oakwood Avenue, Norfolk, Ontario N3Y 1H5

Listed for:
$564,500
5 beds
2 baths
Listed 97 days ago
House for rent: 31 Oakwood Avenue, Norfolk, Ontario N3Y 1H5

View all 44 photos

About

Cross Streets: Potts Rd. ** Directions: Hwy 3 to Ireland Rd turn onto Victoria St to Oakwood Avenue. Attention investors and smart owner-occupants. This solid all-brick bungalow is located in a quiet, family-friendly neighbourhood in Simcoe and is currently configured as a duplex-style residence, offering flexible income and living potential.The main floor unit features a bright layout with three bedrooms, kitchen, bathroom, and access to the attached garage. The lower-level suite, complete with a separate entrance, includes two bedrooms, a four-piece bathroom, a spacious recreation room, and a dedicated laundry area-ideal for generating rental income or providing extended family accommodations.This property is a registered legal rental with Norfolk County and benefits from separately metered hydro for each level, allowing for independent utility management and simplified cost recovery. Recent updates include the roof, windows, and mechanical systems, enhancing long-term reliability and reducing future capital expenditures.Well-suited for investors seeking a turnkey income property or owner-occupants looking to offset mortgage costs, this versatile home offers strong functionality, durable construction, and excellent income potential in a desirable Simcoe location. (id:27476)

Property Highlights

MLS® Number
X12530606
Type
Single Family
Community Name
Simcoe
Ownership Type
Freehold
Land Size
112.2 x 46.8 FT
Parking Space Total
3

Building

Building Type
House
Storeys
1.00
Square Footage
700 - 1100 sqft
Bathrooms Total
2
Bedrooms Above Ground
3
Bedrooms Total
5
Amenities
Separate Heating Controls, Separate Electricity Meters Schools
Exterior Finish
Brick, Concrete
Fireplace Present
No
Basement Type
N/A (Finished), N/A
Basement Features
Separate entrance
Building Heating Type
Forced air
Heating Fuel
Natural gas
Building Cooling Type
Central air conditioning

Utilities

Water
Municipal water
Utility Sewer
Sanitary sewer

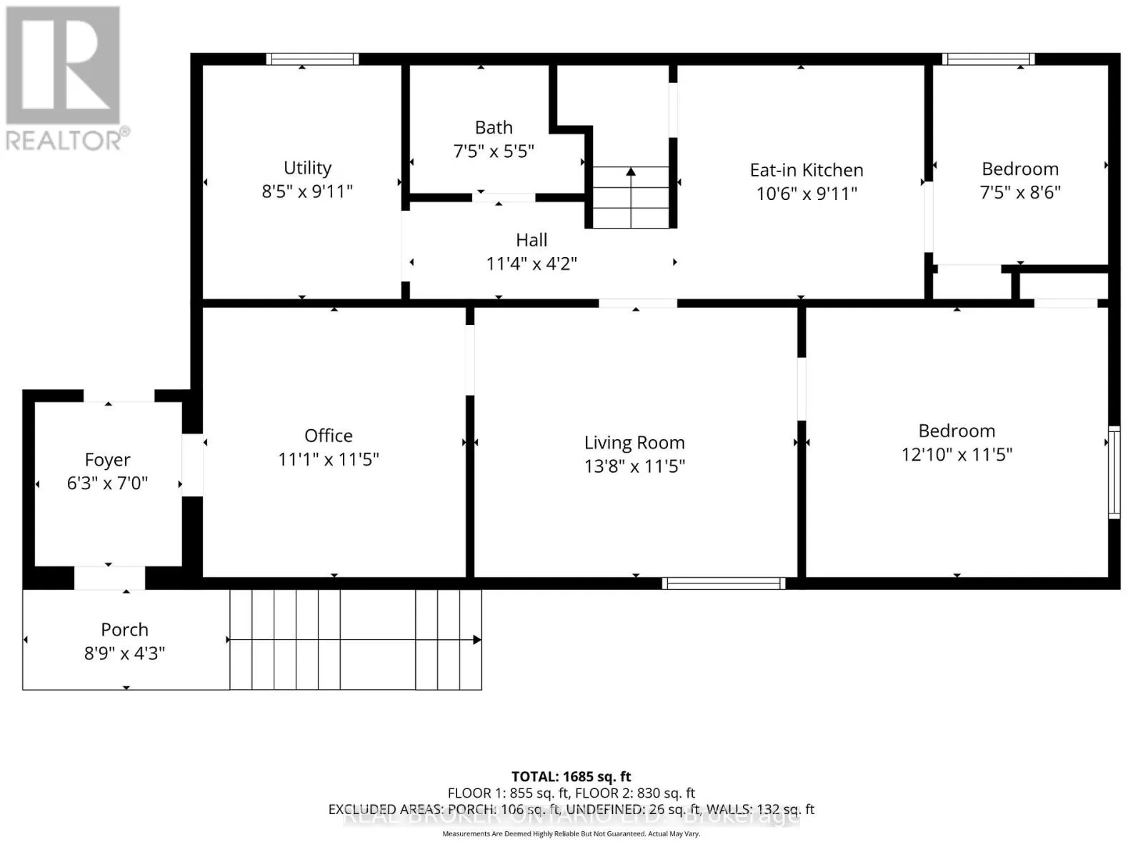
Room Layout

Kitchen
Lower level
3.2 m x 3.02 m
Bedroom 4
Lower level
3.91 m x 3.48 m
Bedroom 5
Lower level
2.26 m x 2.59 m
Office
Lower level
3.38 m x 3.48 m
Bathroom
Lower level
2.26 m x 1.65 m
Other
Lower level
3.45 m x 1.27 m
Foyer
Lower level
1.91 m x 2.13 m
Living room
Lower level
4.17 m x 3.48 m
Living room
Main level
3.89 m x 3.48 m
Kitchen
Main level
2.03 m x 3.02 m
Dining room
Main level
2.9 m x 3.12 m
Bedroom
Main level
3.38 m x 3.02 m
Bedroom 2
Main level
3.12 m x 2.39 m
Bedroom 3
Main level
2.26 m x 3.48 m
Bathroom
Main level
2.08 m x 2.13 m
Foyer
Main level
1.37 m x 3.48 m
Other
Main level
4.04 m x 1.63 m

Location

Learn more about this property
Listing provided by:
REAL BROKER ONTARIO LTD.
MLS® number:
X12530606
Agent:
Peter Costabile
*Indicates required field
Name is required
Email is required
Please enter a valid phone number (e.g., 416-111-1111).

Community Spotlight: Homes For sale in Your Neighborhood