206 - 66 Josephine Street, North Bay, Ontario P1B 0A7

Listed for:
$15
0 beds
0 baths
Listed 327 days ago
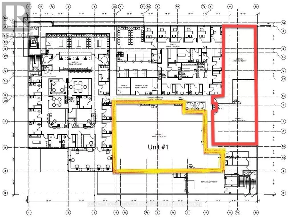
Offices for rent: 206 - 66 Josephine Street, North Bay, Ontario P1B 0A7

View all 8 photos

Learn more about this property
Listing provided by:
REALTY EXECUTIVES Local Group Inc. Brokerage
MLS® number:
X11973316
Agent:
Mike Burman
*Indicates required field
Name is required
Email is required
Please enter a valid phone number (e.g., 416-111-1111).

About

MCKEOWN Prime Location in the heart of the retail sector of North Bay! Second Floor Units Located in the same building as anchor tenant Shoppers Drug Mart. Almost full of medical offices and other professionals. Great visual exposure in an accessible building, bright windows, elevator to second floor, and plenty of plaza parking. This office space of approx. 4500 sq ft space provides views of the vibrant north end of the city! Boasting a top second-floor location, situated in a thriving urban center, the surrounding area is brimming with diverse businesses and a strong local community. This central location guarantees a steady flow of foot traffic, maximizing visibility for your business. (id:27476)

Property Highlights

MLS® Number
X11973316
Type
Office
Community Name
College Heights
Land Size
29654.54 x 711.94 FT

Building

Building Type
Offices
Square Footage
4533 sqft
Amenities
Highway, Public Transit
Fireplace Present
No
Basement Type
Basement Features
Building Heating Type
Forced air
Heating Fuel
Natural gas
Building Cooling Type
Fully air conditioned

Utilities

Water
Municipal water

Location