Pt Lt 39 Birchs, North Bay, Ontario P1A 4A9

Listed for:
$329,900
0 beds
0 baths
Listed 50 days ago
Pt Lt 39 Birchs, North Bay, Ontario P1A 4A9

View all 1 photos

About

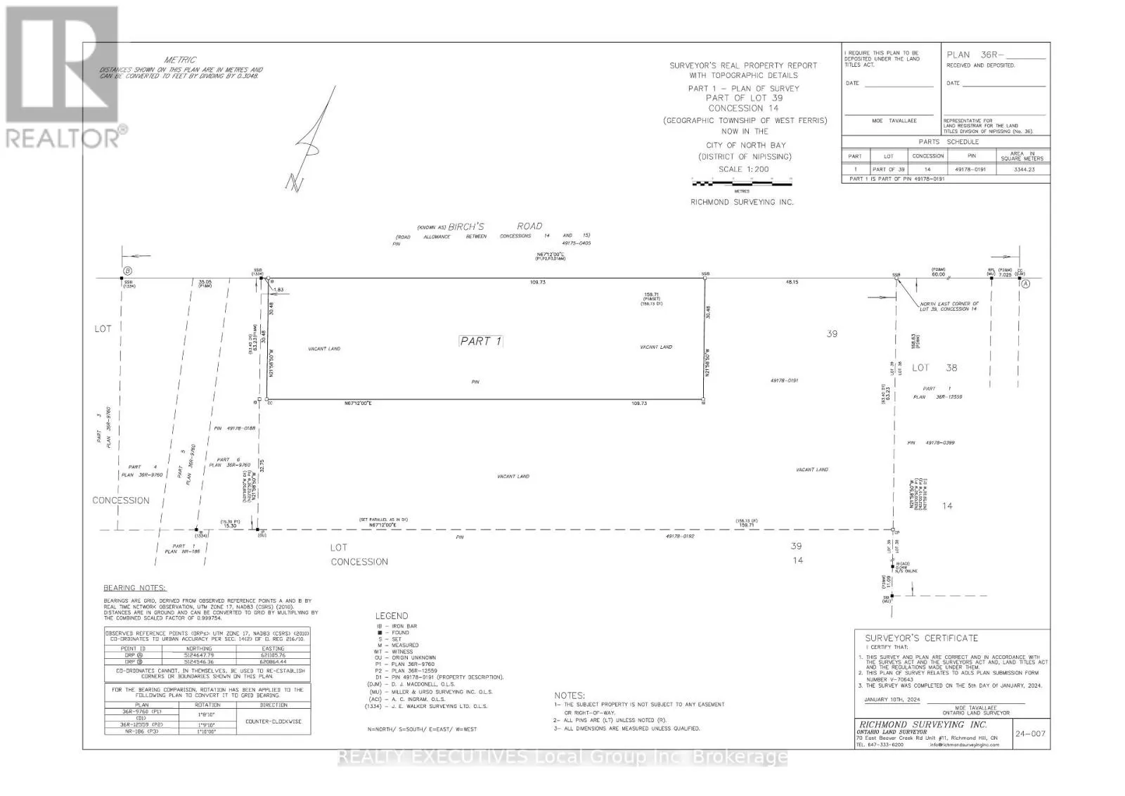
Cross Streets: LAKESHORE. ** Directions: LAKESHORE TO BIRCHS. 2.46 ACRES JUST OFF LAKESHORE DRIVE. PROPERTY CAN BE SUBDIVIDED. ZONED FOR RESIDENTIAL. (id:27476)

Property Highlights

MLS® Number
X12909556
Type
Vacant Land
Community Name
Ferris
Land Size
517.4 x 207.5 FT|2 - 4.99 acres

Building

Fireplace Present
No
Basement Type
Basement Features
Building Heating Type
Heating Fuel
Building Cooling Type

Location

Learn more about this property
Listing provided by:
REALTY EXECUTIVES Local Group Inc. Brokerage
MLS® number:
X12909556
Agent:
Darrel Falconi
*Indicates required field
Name is required
Email is required
Please enter a valid phone number (e.g., 416-111-1111).

Community Spotlight: Homes For sale in Your Neighborhood