Lt 1 Harmony Road E, North Dundas, Ontario K0C 2K0

Listed for:
$879,000
3 beds
2 baths
Listed 114 days ago
House for rent: Lt 1 Harmony Road E, North Dundas, Ontario K0C 2K0

View all 14 photos

Learn more about this property
Listing provided by:
ROYAL LEPAGE TEAM REALTY
MLS® number:
X12304260
Agent:
Stephanie Beauregard
*Indicates required field
Name is required
Email is required
Please enter a valid phone number (e.g., 416-111-1111).

About

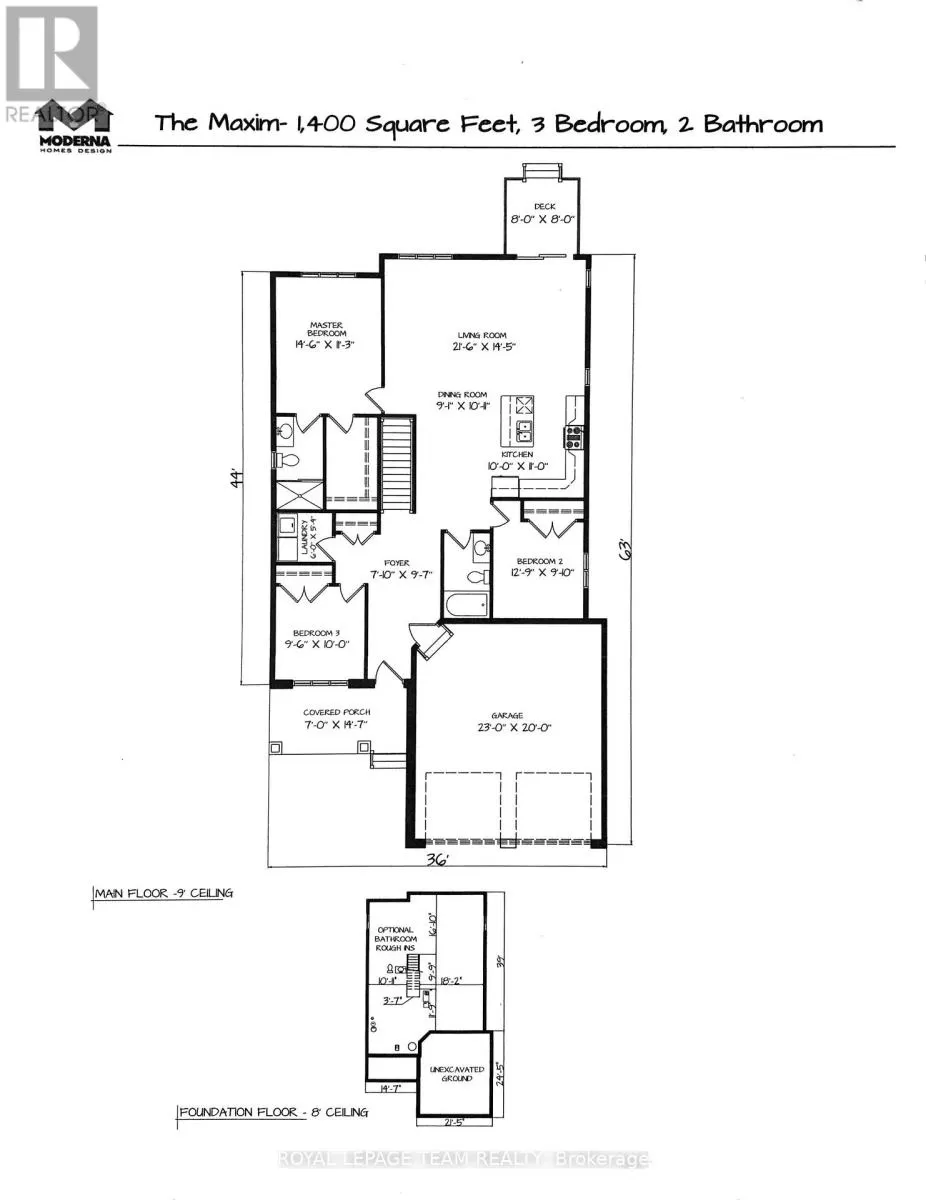
Cross Streets: Harmony Rd and Merkley Rd. ** Directions: Bank St/Ottawa Regional Rd 31; Stormont, Dundas, And Glengarry County Rd 31; Turn right onto Harmony. Build your custom dream home on Lot One in Winchester's Orchard Grove Development, a large 1+ acre site close to the quaint and vibrant town of Winchester and the City Ottawa. The featured "Maxime" model is approximately 1,400 sq ft bungalow with three bedrooms, two bathrooms, an open-concept layout, gourmet kitchen, 9-foot ceilings, double garage, and elegant stone-and-siding exterior. Envision starting your day in modern elegance with cozy comforts, surrounded by peaceful nature. This property offers ample tree coverage to ensure privacy, complemented by an apple orchard landscape throughout the development. Take advantage of this exceptional opportunity to build your future home in an idyllic setting.This home has ICF (Insulated Concrete Form) foundations, which are designed to reduce heating costs and support basement comfort and durability. Many different models are available for this Lot. Please scroll through the pictures to choose, which model suits you. A price list is available in the picture portion of this listing. Don't miss your chance to live life to its fullest in these beautiful custom homes built by Moderna Homes Design Inc. (id:27476)

Property Highlights

MLS® Number
X12304260
Type
Single Family
Community Name
708 - North Dundas (Mountain) Twp
Ownership Type
Freehold
Land Size
31.2 x 86.5 M|1/2 - 1.99 acres
Parking Space Total
5

Building

Building Type
House
Storeys
1.00
Square Footage
1100 - 1500 sqft
Bathrooms Total
2
Bedrooms Above Ground
3
Bedrooms Total
3
Exterior Finish
Stone, Vinyl siding
Fireplace Present
No
Basement Type
N/A (Unfinished)
Basement Features
Building Heating Type
Forced air
Heating Fuel
Propane
Building Cooling Type
None

Utilities

Utility Sewer
Septic System

Location

Street Spotlight - For sale