10295 Shaw Road, North Dundas, Ontario K0E 1S0

Listed for:
$749,900
6 beds
3 baths
Listed 14 days ago
House for rent: 10295 Shaw Road, North Dundas, Ontario K0E 1S0

View all 49 photos

Learn more about this property
Listing provided by:
REALTY EXECUTIVES REAL ESTATE LTD
MLS® number:
X12497002
Agent:
Cathy Hay
*Indicates required field
Name is required
Email is required
Please enter a valid phone number (e.g., 416-111-1111).

About

Cross Streets: County Road 43 and Shaw Road. ** Directions: Take Highway 43 to Shaw Road outside of Hallville. Head west on Shaw road and property is on right. Discover this rare 24-acre retreat featuring a charming 3-storey country home with a distinctive sloping metal roof. Surrounded by mature trees, a peaceful pond, cabin/storage shed, garden shed & detached garage. Enjoy your morning coffee on the wraparound porch or unwind in the screened porch. Inside offers 6 bedrooms including a main-floor primary or granny suite with private entry. Kitchen includes cooktop, built-in oven, fridge, microwave & reverse osmosis system. Main floor laundry with bath & powder room. 2nd floor has 4 bedrooms & 4-pc bath; 3rd floor boasts a private bedroom & bonus room-perfect for teens or home office. Basement workshop with walk-up to yard. Generac included. Tranquility & space await! Located minutes to Hallville; 10 mins to Kemptville, 416 and Winchester. Easy commute to Ottawa. (id:27476)

Property Highlights

MLS® Number
X12497002
Type
Single Family
Community Name
708 - North Dundas (Mountain) Twp
Ownership Type
Freehold
Land Size
496.6 x 2094.8 FT|10 - 24.99 acres
Parking Space Total
10

Building

Building Type
House
Storeys
3.00
Square Footage
2500 - 3000 sqft
Bathrooms Total
3
Bedrooms Above Ground
6
Bedrooms Total
6
Amenities
Fireplace(s)
Exterior Finish
Aluminum siding, Wood
Fireplace Present
Yes
Basement Type
Full, N/A (Unfinished), N/A
Basement Features
Walk-up
Building Heating Type
Baseboard heaters, Not known
Heating Fuel
Electric, Propane
Building Cooling Type
None

Utilities

Power
Generator
Utility Sewer
Septic System

Room Layout

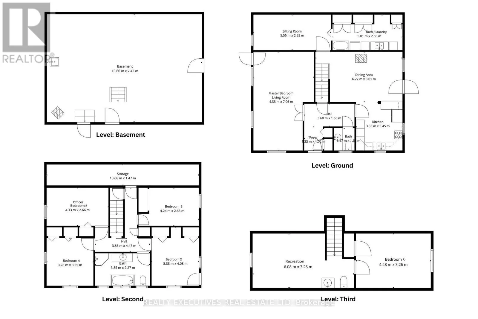
Bathroom
Second level
3.85 m x 4.47 m
Bedroom 2
Second level
3.33 m x 4.08 m
Bedroom 3
Second level
4.24 m x 2.66 m
Bedroom 4
Second level
3.28 m x 3.35 m
Bedroom 5
Second level
4.33 m x 2.66 m
Bedroom
Third level
4.48 m x 3.26 m
Recreational, Games room
Third level
6.08 m x 3.26 m
Bathroom
Third level
2 m x 1.75 m
Kitchen
Ground level
3.33 m x 3.45 m
Dining room
Ground level
6.22 m x 3.61 m
Living room
Ground level
5.55 m x 2.55 m
Bedroom
Ground level
4.33 m x 7.06 m
Bathroom
Ground level
1.47 m x 1.6 m
Laundry room
Ground level
5.01 m x 2.55 m

Location