518 Church Street, North Dundas, Ontario K0C 2K0

Listed for:
$348,800
0 beds
0 baths
Listed 43 days ago
518 Church Street, North Dundas, Ontario K0C 2K0

View all 35 photos

About

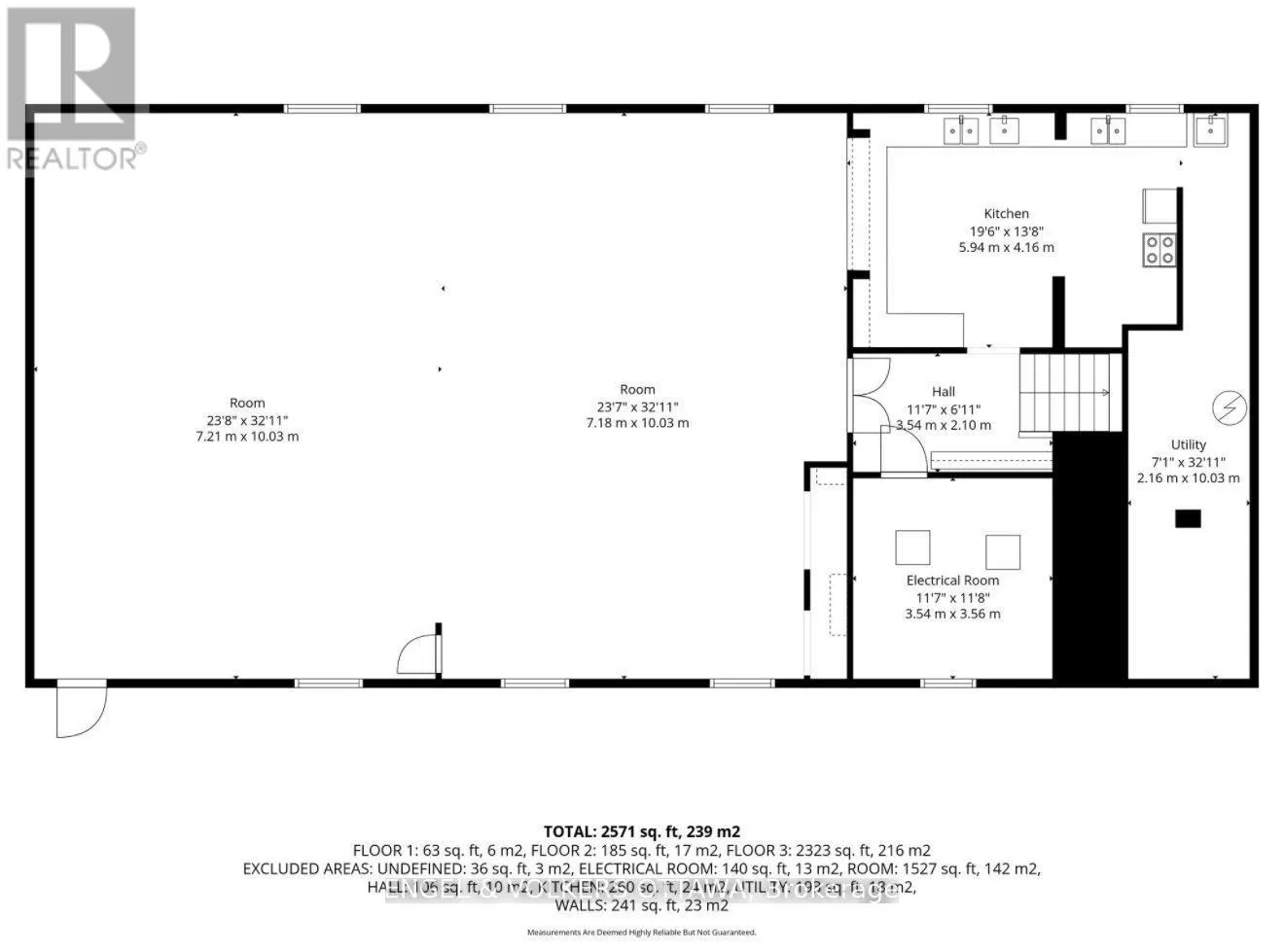
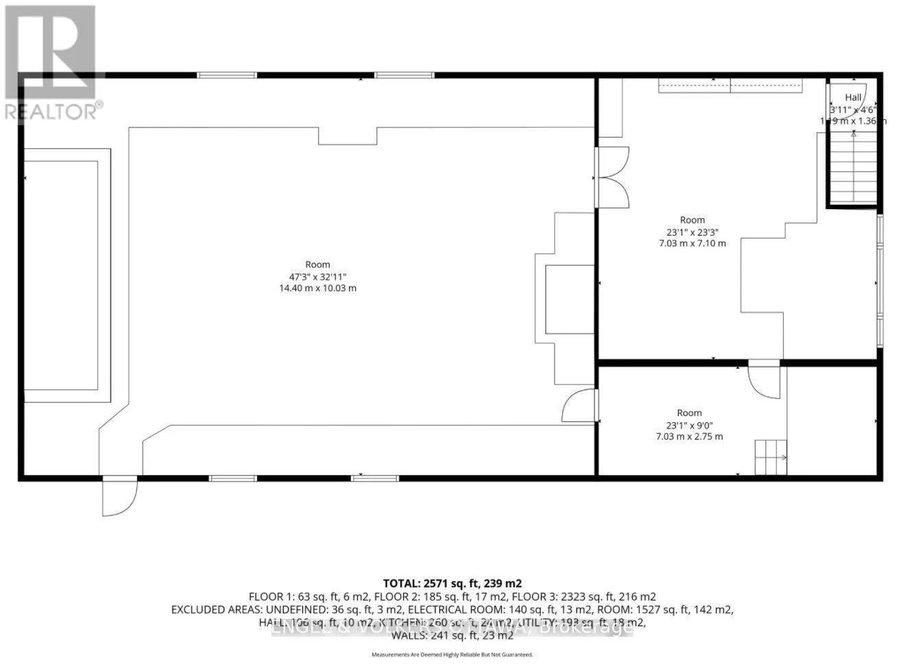
Cross Streets: Louise and Winchester Main. ** Directions: Louise St to Church St. Exceptional investment opportunity in the heart of Winchester! Situated on a spacious lot in a growing community just 30 minutes south of Ottawa, 518 Church Street presents incredible potential for savvy investors, developers, or builders looking to create a multi-unit residential property. Zoned for flexible residential use and located within walking distance to schools, shopping, and the Winchester District Memorial Hospital, this property offers the perfect blend of small-town living and long-term growth potential.The lot's wide frontage and depth provide ample space for redevelopment-ideal for a purpose-built rental property, semi-detached homes, or a low-rise multi-unit dwelling (buyer to verify permitted uses with the township). The existing home can serve as a holding income property while you plan your next phase of development. Municipal water, sewer, and natural gas services are available simplifying the transition to multi-unit use.With demand for quality rental housing on the rise across North Dundas, opportunities like this are becoming increasingly rare. Winchester's convenient access to Highway 31 (Bank Street), local schools, medical facilities, and family amenities makes it an attractive option for both residents and investors alike. Whether you're an experienced developer or an investor looking to expand your portfolio, this property checks all the boxes: location, services, and potential.Don't miss your chance to shape the next phase of growth in one of Eastern Ontario's most promising rural communities. A true diamond-in-the-rough ready for your vision-explore the possibilities today! (Two deeded spots as well as gravel approval for additional parking. Sewer and water are both connected. Future water rights for 4 apartments have been secured for the address if necessary. Roof done within the last 5 years) (id:27476)

Property Highlights

MLS® Number
X12675580
Type
Business
Community Name
706 - Winchester
Land Size
398 ac

Building

Square Footage
4284 sqft
Fireplace Present
No
Basement Type
Basement Features
Building Heating Type
Baseboard heaters, Forced air
Heating Fuel
Natural gas
Building Cooling Type
Fully air conditioned

Utilities

Water
Municipal water

Location

Learn more about this property
Listing provided by:
ENGEL & VOLKERS OTTAWA
MLS® number:
X12675580
Agent:
James Angus
*Indicates required field
Name is required
Email is required
Please enter a valid phone number (e.g., 416-111-1111).