11943 Forest Hill Road, North Dundas, Ontario K0C 2K0

Listed for:
$725,000
3 beds
3 baths
Listed 16 days ago
House for rent: 11943 Forest Hill Road, North Dundas, Ontario K0C 2K0

View all 36 photos

About

Cross Streets: Forest Hill Road and Old Carriage Lane. ** Directions: Bank Street/Highway 31 to Forest Hill Road; to 11943. This custom-built home is set on a premium, maturely treed lot and offers timeless character paired with thoughtful updates-an ideal setting for family living. Hardwood floors and elegant archways add warmth and charm throughout. The main level features a spacious den highlighted by a striking stone Jøtul fireplace, a large upgraded eat-in kitchen with granite countertops and stainless steel appliances, and a generously sized living room perfect for everyday living and entertaining. A convenient powder room is located just off the main entrance. Enjoy year-round relaxation in the screened-in porch complete with a hot tub. Upstairs, the home offers three well-proportioned bedrooms, including a primary retreat, along with two renovated bathrooms. The lower level adds valuable living space with a family/rec room, gym area, and a cold cellar. The oversized, beautifully landscaped lot provides abundant outdoor living, play, and gardening space, with front, side, and rear yards designed to be enjoyed in every season. Surrounded by nature and wildlife, this property offers a peaceful setting while remaining close to local amenities, including Winchester, Cloverdale Links Golf Course, and nearby ATV trails and an easy commute to Ottawa. (id:27476)

Property Highlights

MLS® Number
X12885684
Type
Single Family
Community Name
708 - North Dundas (Mountain) Twp
Ownership Type
Freehold
Land Size
200.3 x 315.8 FT|1/2 - 1.99 acres
Parking Space Total
10

Building

Building Type
House
Storeys
2.00
Square Footage
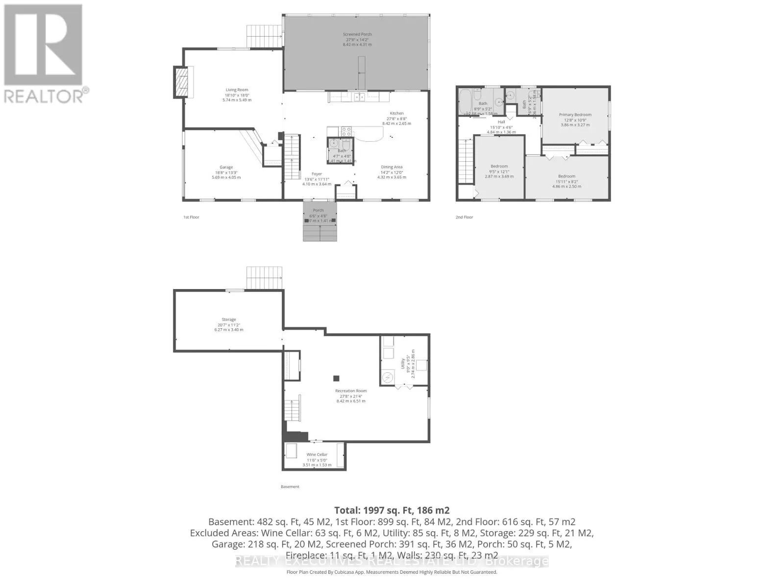
1500 - 2000 sqft
Bathrooms Total
3
Bedrooms Above Ground
3
Bedrooms Total
3
Amenities
Fireplace(s) Golf Nearby
Exterior Finish
Brick
Fireplace Present
Yes
Basement Type
Full (Partially finished)
Basement Features
Building Heating Type
Forced air
Heating Fuel
Propane
Building Cooling Type
Central air conditioning

Utilities

Utility Sewer
Septic System

Room Layout

Bedroom 3
Second level
3.69 m x 2.97 m
Primary Bedroom
Second level
3.86 m x 3.27 m
Bathroom
Second level
2.06 m x 1.58 m
Bathroom
Second level
2.68 m x 1.58 m
Bedroom 2
Second level
4.86 m x 2.5 m
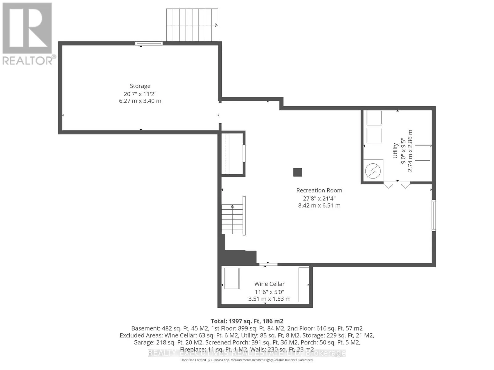
Recreational, Games room
Lower level
8.53 m x 4.57 m
Utility room
Lower level
3.04 m x 3.04 m
Other
Lower level
5.79 m x 3.96 m
Other
Lower level
2.74 m x 1.52 m
Kitchen
Ground level
2.74 m x 6.22 m
Dining room
Ground level
2.72 m x 2.4 m
Living room
Ground level
4.32 m x 3.65 m
Family room
Ground level
5.74 m x 5.49 m
Other
Ground level
3.17 m x 2.43 m
Bathroom
Ground level
1.52 m x 1.34 m

Location

Learn more about this property
Listing provided by:
REALTY EXECUTIVES REAL ESTATE LTD
MLS® number:
X12885684
Agent:
Cathy Hay
*Indicates required field
Name is required
Email is required
Please enter a valid phone number (e.g., 416-111-1111).