2811-2815 Rolland Massie Road, North Glengarry, Ontario K0C 1A0

Listed for:
$580,000
4 beds
1 baths
Listed 154 days ago
House for rent: 2811-2815 Rolland Massie Road, North Glengarry, Ontario K0C 1A0

View all 30 photos

About

Cross Streets: McCormick Rd and Rolland-Massie rd. ** Directions: From Alexandria go North on Cty Rd 34 then turn right on Power Dam rd which becomes McCormick rd to Rolland-Massie Rd then turn North to the property. Two Homes on One Lot Ideal for Extended Family or Extra Income! Heres a rare opportunity to own a country property with two homes on the same lot. Perfect for multigenerational living or generating rental income. The newer home is a spacious 3+1 bedroom bungalow featuring an open-concept kitchen and dining area. Plenty of natural light beaming through many windows & patio door in the dining and living room area. The basement is unspoiled and full of potential, with a separate entrance from the carport for added convenience. Exterior large back deck has been recently installed for your everyday living and entertaining. The second dwelling is a charming early-1900s farmhouse, currently rented at $1,050/month, offering immediate income potential. Set on a quiet country road with minimal traffic, this peaceful and private setting also includes two large storage buildings: one measuring 44' x 80', and another at 25' x 40' ideal for equipment, workshop use, or extra storage. Come experience the quiet charm and versatility this unique property has to offer! (id:27476)

Property Highlights

MLS® Number
X12633632
Type
Single Family
Community Name
721 - North Glengarry (Lochiel) Twp
Ownership Type
Freehold
Land Size
312 x 351.4 FT|2 - 4.99 acres
Parking Space Total
12

Building

Building Type
House
Storeys
1.00
Square Footage
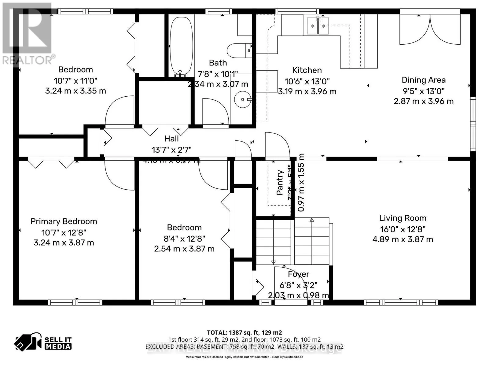
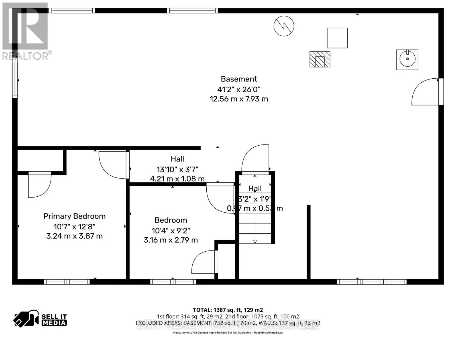
1100 - 1500 sqft
Bathrooms Total
1
Bedrooms Above Ground
3
Bedrooms Total
4
Exterior Finish
Aluminum siding
Fireplace Present
Yes
Basement Type
N/A (Unfinished)
Basement Features
Building Heating Type
Forced air
Heating Fuel
Oil
Building Cooling Type
None

Utilities

Utility Sewer
Septic System

Location

Learn more about this property
Listing provided by:
EXIT REALTY MATRIX
MLS® number:
X12633632
Agent:
Dominique Seguin
*Indicates required field
Name is required
Email is required
Please enter a valid phone number (e.g., 416-111-1111).