126-128 Prescott Street, North Grenville, Ontario K0G 1J0

Listed for:
$1,095,000
0 beds
3 baths
Listed 235 days ago
Residential Commercial Mix for rent: 126-128 Prescott Street, North Grenville, Ontario K0G 1J0

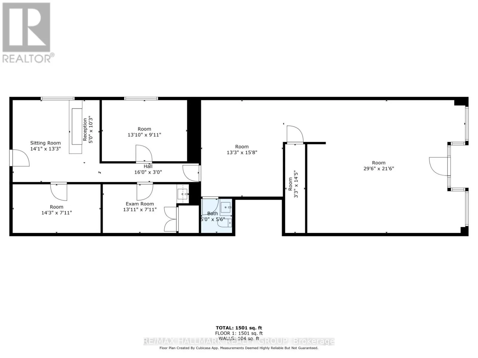
View all 50 photos

About

Cross Streets: Clothier Street. ** Directions: South on Rideau Street, turn left onto Clothier Street, turn right onto Prescott Street, property is on the right. Great opportunity to open the business you always dreamed of doing so some day! Don't make the mistake that many entrepreneurs' often do by working so hard to build the successful business of their dreams and then most of the value created by their hard work ends up benefiting the owner of the building they are renting for their business location. Build a great reputation for your special business and generate long term value you can count on when the time comes for you to enjoy a well deserved retirement because you can not only sell the successful business that you worked so incredibly hard to promote in this beautiful community but also sell a valuable building that you personally own. Or, rent out both spaces and enjoy a great investment opportunity in this well designed & highly renovated building that is located in a prime location of downtown Kemptville, one of the fastest growing communities in Eastern Ontario. Located near many other professional businesses, parks & communities facilities where many special community events happen. Surrounded by trendy cafes, boutique restaurant, and just next door to one of Canada's top financial institutions. The properties highly sought location includes a rare large lot with ample private parking and the neighborhood also features plenty of street parking and public parking lots. The commercial main level and the ultra luxurious residential 2-bedroom & 2-bathroom apartment unit (the 2-bedroom apartment presently rented at $2,400 per month) both feature many recent updates incl. air conditioners, flooring, light fixtures, bathroom vanities and so much more. The upper floor residential apartment features sparkling hardwood floors, a gourmet Kitchen with luxurious floor to ceiling cabinetry, granite countertops and high quality appliances. The ground floor offers 2 versatile commercial spaces totaling approx. 1,500 sq ft. Zoned C1-Downtown Commercial this property offers excellent flexibility for Developers & Investors. (id:27476)

Property Highlights

MLS® Number
X12277896
Type
Retail
Community Name
801 - Kemptville
Land Size
Bldg=32.91 x 163.2 FT
Parking Space Total
6

Building

Building Type
Residential Commercial Mix
Square Footage
2340 sqft
Bathrooms Total
3
Amenities
Public Transit, Recreation
Fireplace Present
No
Basement Type
Basement Features
Building Heating Type
Forced air
Heating Fuel
Natural gas
Building Cooling Type
Fully air conditioned

Utilities

Water
Municipal water
Utility Sewer
Sanitary sewer

Location

Learn more about this property
Listing provided by:
RE/MAX HALLMARK REALTY GROUP
MLS® number:
X12277896
Agent:
Marc Leduc
*Indicates required field
Name is required
Email is required
Please enter a valid phone number (e.g., 416-111-1111).