126-128 Prescott Street, North Grenville, Ontario K0G 1J0

Listed for:
$1,095,000
2 beds
3 baths
Listed 177 days ago
House for rent: 126-128 Prescott Street, North Grenville, Ontario K0G 1J0

View all 50 photos

About

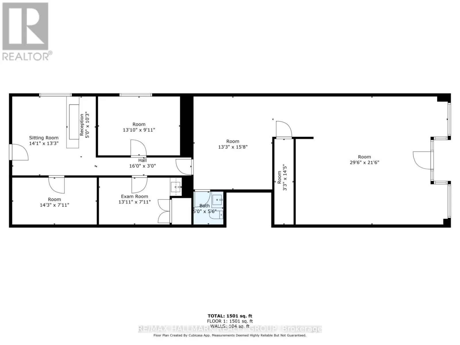
Cross Streets: Clothier Street. ** Directions: South on Rideau Street, turn left onto Clothier Street, turn right onto Prescott Street, Property on the right. Great opportunity to open the business you always dreamed of doing so some day! The commercial main level and the ultra luxurious residential 2-bedroom & 2-bathroom apartment unit (2- bedroom apartment presently rented at $2,400 per month) were recently upgraded throughout including air conditioners, flooring, light fixtures, bathroom vanities and so much more. The upper floor residential apartment features sparkling hardwood floors, a gourmet Kitchen with luxurious floor to ceiling cabinetry, granite countertops and high quality appliances. Don't make the mistake that many entrepreneurs' often do by working so hard to build the successful business of their dreams and then most of the value created by their hard work ends up benefiting the owner of the building they are renting for their business location. Build a great reputation for your special business and generate long term value you can count on when the time comes for you to enjoy a well deserved retirement because you can not only sell the successful business that you worked so incredibly hard to promote in this beautiful community but also sell a valuable building that you personally own. Or, rent out both spaces and enjoy a great investment opportunity in this well designed & highly renovated building that is located in a prime location of downtown Kemptville, one of the fastest growing communities in Eastern Ontario. Located near many other professional businesses, parks & communities facilities where many special community events happen. Surrounded by trendy cafes, boutique restaurant, and just next door to one of Canada's top financial institutions. The properties highly sought location includes a rare large lot with ample private parking and the neighborhood also features plenty of street parking and public parking lots.The ground floor offers 2 versatile commercial spaces totaling approx. 1,500 sq ft. Zoned C1-Downtown Commercial this property offers excellent flexibility for Developers & Investors (id:27476)

Property Highlights

MLS® Number
X12280611
Type
Single Family
Community Name
801 - Kemptville
Ownership Type
Freehold
Land Size
33 x 163.2 FT
Parking Space Total
6

Building

Building Type
House
Storeys
2.00
Square Footage
2000 - 2500 sqft
Bathrooms Total
3
Bedrooms Above Ground
2
Bedrooms Total
2
Amenities
Fireplace(s) Park, Place of Worship, Schools
Exterior Finish
Brick, Concrete Block
Fireplace Present
Yes
Basement Type
N/A (Unfinished)
Basement Features
Building Heating Type
Forced air
Heating Fuel
Natural gas
Building Cooling Type
Central air conditioning

Utilities

Water
Municipal water
Utility Sewer
Sanitary sewer

Location

Learn more about this property
Listing provided by:
RE/MAX HALLMARK REALTY GROUP
MLS® number:
X12280611
Agent:
Marc Leduc
*Indicates required field
Name is required
Email is required
Please enter a valid phone number (e.g., 416-111-1111).