1718 County 18 Road, North Grenville, Ontario K0G 1S0

Listed for:
$999,000
3 beds
3 baths
Listed 4 days ago
House for rent: 1718 County 18 Road, North Grenville, Ontario K0G 1S0

View all 9 photos

About

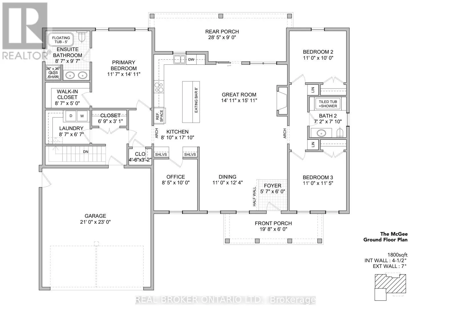
Cross Streets: County Road 18 & Bedell Road. ** Directions: Head southwest on County Rd 43. At the roundabout, continue straight to stay on County Rd 43. Turn left onto Somerville Rd. Turn right onto County Rd 18. Welcome to The McGee, a stunning new build by ArchStone Homes, set along the banks of Kemptville Creek.This beautifully designed bungalow delivers the best of main-floor living, with an open-concept layout that connects the great room, dining area, and chef-inspired kitchen in one effortless flow. Step out to an expansive rear porch and take in your private waterfront backdrop, the kind of setting that makes every day feel like a getaway.The primary suite is a true retreat, featuring a walk-in closet and a spa-inspired ensuite with a glass shower. Two additional bedrooms offer flexibility for family, guests, or a home office, while a dedicated office space and main-floor laundry keep daily life organized and convenient.The modern farmhouse exterior makes a lasting first impression, and the attached garage and generous driveway offer all the practicality you'd expect from a well-thought-out build. The full walk-out basement is a blank canvas, ready for future living space, a home gym, or an in-law suite. With direct frontage on Kemptville Creek and a deep, private lot, this is a rare chance to own a brand-new home where nature is part of your everyday life, without sacrificing proximity to all Kemptville has to offer. (id:27476)

Property Highlights

MLS® Number
X12991904
Type
Single Family
Community Name
803 - North Grenville Twp (Kemptville South)
Ownership Type
Freehold
Land Size
118.6 x 524.9 FT
Parking Space Total
5

Building

Building Type
House
Storeys
1.00
Square Footage
1500 - 2000 sqft
Bathrooms Total
3
Bedrooms Above Ground
3
Bedrooms Total
3
Exterior Finish
Vinyl siding
Fireplace Present
No
Basement Type
Full
Basement Features
Walk out
Building Heating Type
Forced air
Heating Fuel
Propane
Building Cooling Type
Central air conditioning, Air exchanger

Utilities

Water
Drilled Well
Utility Sewer
Septic System

Room Layout

Primary Bedroom
Main level
3.53 m x 4.55 m
Bathroom
Main level
2.18 m x 2.39 m
Bathroom
Main level
2.62 m x 2.92 m
Laundry room
Main level
2.62 m x 2.01 m
Kitchen
Main level
2.69 m x 5.44 m
Office
Main level
2.57 m x 3.05 m
Dining room
Main level
3.35 m x 3.76 m
Foyer
Main level
1.7 m x 1.83 m
Living room
Main level
4.55 m x 4.85 m
Bedroom 2
Main level
3.35 m x 3.05 m
Bedroom 3
Main level
3.35 m x 3.48 m

Location

Learn more about this property
Listing provided by:
REAL BROKER ONTARIO LTD.
MLS® number:
X12991904
Agent:
Deb Driscoll
*Indicates required field
Name is required
Email is required
Please enter a valid phone number (e.g., 416-111-1111).