6 - 32 Postma Street, North Middlesex, Ontario N0M 1A0

Listed for:
$574,900
2 beds
2 baths
Listed 5 days ago
Row / Townhouse for rent: 6 - 32 Postma Street, North Middlesex, Ontario N0M 1A0

View all 28 photos

About

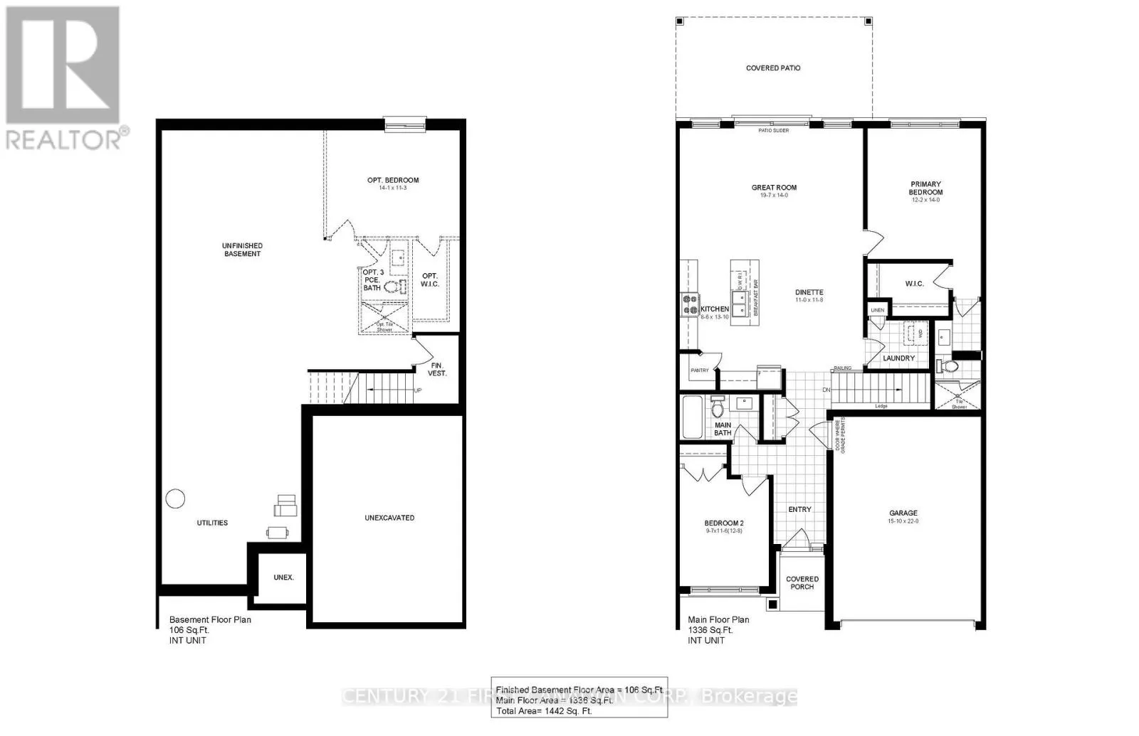
Cross Streets: Hamilton St / Postma Cres. ** Directions: Travelling south on Queen St, turn left onto Hamilton St. Turn left on Postma Cres, turn left into 32 Postma. Property on the right, and the end of street. MOVE IN READY! Welcome to the Ausable Bluffs of Ailsa Craig, a beautifully crafted single-floor freehold condo built by Morrison Homes, known for quality construction and thoughtful design. This modern residence offers an open-concept main floor featuring 2 spacious bedrooms and 2 well-appointed bathrooms. The kitchen is highlighted by sleek quartz countertops, stylish wood cabinetry, and contemporary finishes, perfect for both everyday living and entertaining. Throughout the home, luxury vinyl flooring adds both durability and timeless appeal for today's busy families. The unfinished basement provides a generous footprint with a rough-in bathroom, offering excellent potential to customize and expand your living space to suit your needs. Blending practicality with refined style, this Morrison Homes build presents an exceptional opportunity to enjoy modern living in the heart of Ailsa Craig. The common element fee includes full lawn care, full snow removal, common area expenses, and management fees. **Property tax and assessment not yet set. Note: Interior photos are from a similar model; some upgrades or finishes may not be included.** (id:27476)

Property Highlights

MLS® Number
X12819188
Type
Single Family
Community Name
Ailsa Craig
Maintenance Fee
187.73
Ownership Type
Freehold
Land Size
33 x 118 FT
Parking Space Total
3

Building

Building Type
Row / Townhouse
Storeys
1.00
Square Footage
1100 - 1500 sqft
Bathrooms Total
2
Bedrooms Above Ground
2
Bedrooms Total
2
Amenities
Fireplace(s) Park
Exterior Finish
Brick, Vinyl siding
Fireplace Present
Yes
Basement Type
N/A (Unfinished)
Basement Features
Building Heating Type
Forced air
Heating Fuel
Natural gas
Building Cooling Type
Central air conditioning

Utilities

Water
Municipal water
Utility Sewer
Sanitary sewer

Room Layout

Great room
Main level
5.97 m x 4.27 m
Dining room
Main level
3.35 m x 3.56 m
Kitchen
Main level
2.59 m x 4.22 m
Primary Bedroom
Main level
3.71 m x 4.27 m
Bedroom 2
Main level
2.92 m x 3.51 m

Location

Learn more about this property
Listing provided by:
CENTURY 21 FIRST CANADIAN CORP.
MLS® number:
X12819188
Agent:
Matthew Morrison
*Indicates required field
Name is required
Email is required
Please enter a valid phone number (e.g., 416-111-1111).

Street Spotlight - For sale