450 Inkerman Street W, North Perth, Ontario N4W 1C5

Listed for:
$499,900
5 beds
2 baths
Listed 65 days ago
House for rent: 450 Inkerman Street W, North Perth, Ontario N4W 1C5

View all 47 photos

About

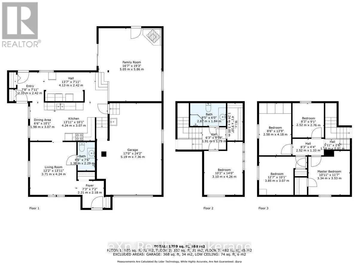
Cross Streets: Victoria Avenue. ** Directions: Main Street West to Victoria Ave North. East on Inkerman Street West. Property on South Side. Endless space awaits! This 1.5-storey home offers approximately 1,800 sq. ft. of comfortable living space, situated on a generous 65x165 lot. With 4 spacious bedrooms, a versatile nursery or office, and two 3-piece bathrooms, there's room for the whole family to enjoy. The main floor features a well-appointed kitchen with ample cupboard space, a spacious dining room, a full bathroom, and a massive living room perfect for gatherings. Upstairs, you'll find all four bedrooms, the additional flex room, and the second bathroom. Outside, the property boasts a single-car attached garage with street access, plus additional parking for four vehicles on the east side. The expansive backyard is a rare find in town, providing plenty of space for kids, pets, or entertaining. A second garage at the rear of the home offers extra storage or a workshop area, accessible from both the backyard and the living room. Don't miss out on this incredible space - schedule your private viewing today! (id:27476)

Property Highlights

MLS® Number
X12774932
Type
Single Family
Community Name
Listowel
Ownership Type
Freehold
Land Size
65.3 x 165 FT
Parking Space Total
5

Building

Building Type
House
Storeys
1.50
Square Footage
1500 - 2000 sqft
Bathrooms Total
2
Bedrooms Above Ground
5
Bedrooms Total
5
Exterior Finish
Aluminum siding
Fireplace Present
Yes
Basement Type
N/A (Unfinished)
Basement Features
Building Heating Type
Forced air
Heating Fuel
Natural gas
Building Cooling Type
None

Utilities

Water
Municipal water
Utility Sewer
Sanitary sewer

Room Layout

Primary Bedroom
Second level
4.26 m x 3.1 m
Bedroom 2
Second level
3.53 m x 3.34 m
Bedroom 3
Second level
3.85 m x 3.07 m
Bedroom 4
Second level
4.18 m x 2.58 m
Office
Second level
2.76 m x 2.52 m
Bathroom
Second level
2.87 m x 1.84 m
Kitchen
Main level
6.22 m x 6.14 m
Dining room
Main level
4.24 m x 3.71 m
Family room
Main level
5.86 m x 5.05 m
Bathroom
Main level
2.29 m x 1.38 m

Location

Learn more about this property
Listing provided by:
eXp Realty
MLS® number:
X12774932
Agent:
Bob Heimpel
*Indicates required field
Name is required
Email is required
Please enter a valid phone number (e.g., 416-111-1111).

Community Spotlight: Homes For sale in Your Neighborhood