60 Charles Street, North Stormont, Ontario K0A 1R0

Listed for:
$469,900
3 beds
1 baths
Listed 3 days ago
House for rent: 60 Charles Street, North Stormont, Ontario K0A 1R0

View all 38 photos

About

From Finch Cambridge Boundary Rd., Turn onto Crysler Rd., Turn right onto Charles St. **OPEN HOUSE Sun Ap 19, 2-4pm** Escape to the peace and beauty of country living with this charming 3 bedroom bungalow, perfectly set in a tranquil setting that truly captures country living at its finest. Offering the convenience of an attached garage with inside entry, this home welcomes you with an inviting foyer that leads into a bright, open-concept main level designed for both comfort and functionality. The spacious kitchen features ample cabinetry and generous counter space, flowing seamlessly into the eating area and sun-filled living room, where a cozy fireplace and stunning floor-to-ceiling windows create a warm and inviting atmosphere with an abundance of natural light. The main floor also offers a well-appointed primary bedroom, an additional bedroom, and a 4-piece bathroom. A practical laundry area with patio doors provides direct access to the backyard, blending indoor and outdoor living effortlessly. The fully finished lower level expands your living space with a large family room complete with a second fireplace, perfect for relaxing or entertaining. You'll also find a spacious bedroom with a walk-in closet, a versatile office ideal for working from home, along with plenty of storage and a utility room. Step outside to your private backyard oasis featuring a garden shed and a hot tub (as is), the perfect spot to unwind and enjoy the serenity of the countryside. This is a rare opportunity to experience peaceful living while still enjoying all the comforts of home. (id:27476)

Property Highlights

MLS® Number
X12992746
Type
Single Family
Community Name
711 - North Stormont (Finch) Twp
Ownership Type
Freehold
Land Size
110.1 x 164.3 FT
Parking Space Total
7

Building

Building Type
House
Storeys
1.00
Square Footage
1100 - 1500 sqft
Bathrooms Total
1
Bedrooms Above Ground
2
Bedrooms Total
3
Amenities
Fireplace(s) Schools, Place of Worship, Park
Exterior Finish
Brick
Fireplace Present
Yes
Basement Type
Full (Partially finished)
Basement Features
Building Heating Type
Forced air
Heating Fuel
Natural gas
Building Cooling Type
Central air conditioning

Utilities

Water
Municipal water
Utility Sewer
Sanitary sewer

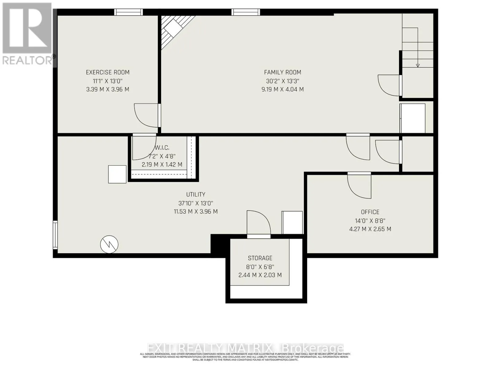
Room Layout

Office
Lower level
4.27 m x 2.65 m
Family room
Lower level
9.19 m x 4.04 m
Bedroom
Lower level
3.39 m x 3.96 m
Utility room
Lower level
11.53 m x 3.96 m
Foyer
Main level
3.23 m x 2.73 m
Kitchen
Main level
4.26 m x 3.65 m
Living room
Main level
5.16 m x 3.65 m
Primary Bedroom
Main level
3.12 m x 3.5 m
Bedroom
Main level
3.05 m x 3.51 m
Laundry room
Main level
4.03 m x 3.6 m
Bathroom
Main level
2.18 m x 2.15 m

Location

Learn more about this property
Listing provided by:
EXIT REALTY MATRIX
MLS® number:
X12992746
Agent:
Maggie Tessier
*Indicates required field
Name is required
Email is required
Please enter a valid phone number (e.g., 416-111-1111).