3 - 18 Maple Golf Crescent, Northern Bruce Peninsula, Ontario N0H 2R0

Listed for:
$1,650
1 beds
1 baths
Listed 160 days ago
Row / Townhouse for rent: 3 - 18 Maple Golf Crescent, Northern Bruce Peninsula, Ontario N0H 2R0

View all 45 photos

About

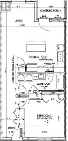
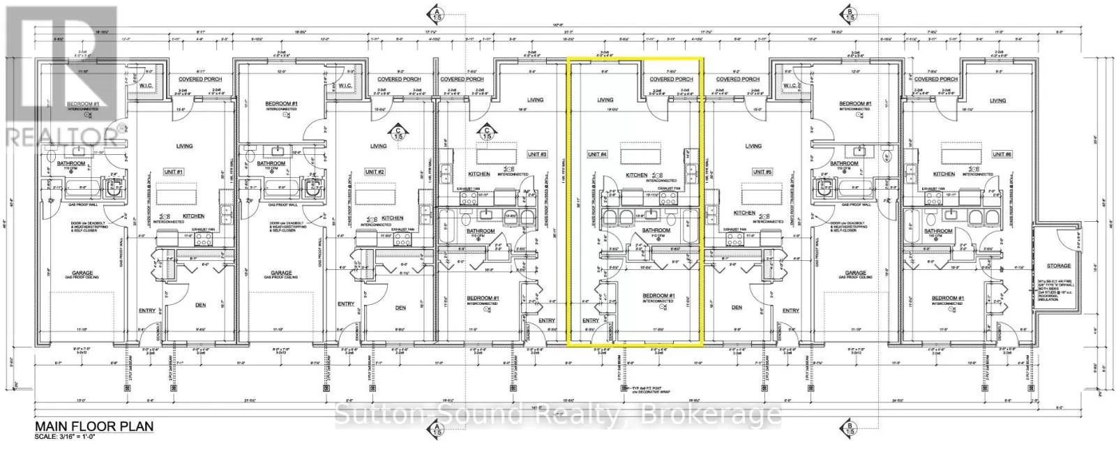
Cross Streets: Highway 6 / Maple Golf Cres. ** Directions: Heading north on Hwy 6, turn right onto Maple Golf Cres. Property is the first one on the right side. Welcome to Escarpment Heights, a thoughtfully designed retirement rental community offering the perfect blend of comfort, convenience, and peace of mind. These townhome-style apartments are an excellent option whether you're looking to enjoy year-round living in Tobermory or spend summers here and head south for the winter, knowing your property will be cared for with lawn maintenance and snow removal included. Each unit has been built with quality in mind, featuring open and spacious layouts, paved driveways, covered entrances, and private outdoor spaces. Deluxe units offer the added bonus of a single-car garage and den. Every home is equipped with in-floor heating, air conditioning, and 36" door widths for accessibility, along with a full suite of stainless steel appliances including fridge, stove, dishwasher, microwave, washer, and dryer. The Standard One-Bedroom unit provides 720 square feet of well-planned living space. It includes a large master bedroom with generous closet space and an open-concept kitchen, dining, and living area highlighted by a built-in pantry. The rental rate is $1,650 per month plus hydro, with in-floor heating, water, property taxes, lawn care, guest parking, and snow removal all included. Escarpment Heights is more than just a place to live - its a lifestyle. Set in the heart of Tobermory, its the perfect choice for those seeking a secure, low-maintenance retirement home surrounded by the natural beauty of the Bruce Peninsula. With Phase 1 now complete and Phase 2 coming soon, this is the ideal time to reserve your unit and secure your place in this sought-after community. Contact me today to arrange a viewing or learn more about availability at Escarpment Heights. (id:27476)

Property Highlights

MLS® Number
X12387577
Type
Single Family
Community Name
Northern Bruce Peninsula
Ownership Type
Freehold
Parking Space Total
1

Building

Building Type
Row / Townhouse
Storeys
1.00
Square Footage
700 - 1100 sqft
Bathrooms Total
1
Bedrooms Above Ground
1
Bedrooms Total
1
Exterior Finish
Vinyl siding, Stone
Fireplace Present
No
Basement Type
None
Basement Features
Building Heating Type
Radiant heat
Heating Fuel
Propane
Building Cooling Type
Wall unit

Utilities

Utility Sewer
Septic System

Room Layout

Kitchen
Main level
4.47 m x 5.53 m
Bedroom
Main level
3.36 m x 3.48 m
Bathroom
Main level
1.52 m x 4.14 m

Location

Learn more about this property
Listing provided by:
Sutton-Sound Realty
MLS® number:
X12387577
Agent:
Michelle Draper
*Indicates required field
Name is required
Email is required
Please enter a valid phone number (e.g., 416-111-1111).