2770 Brighton Road, Oakville, Ontario L6H 5T4

Listed for:
$13,300,000
0 beds
4 baths
Listed 141 days ago
Warehouse for rent: 2770 Brighton Road, Oakville, Ontario L6H 5T4

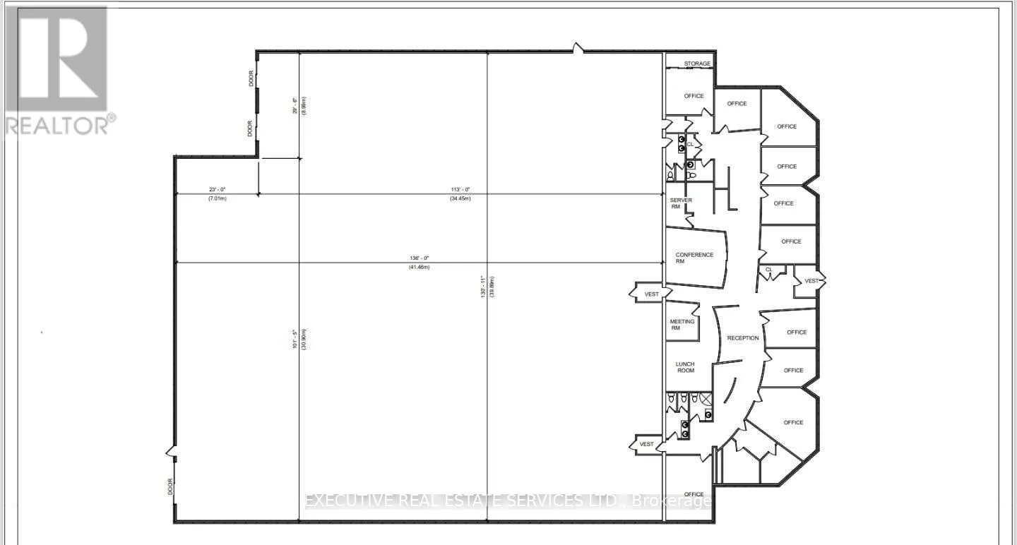
View all 6 photos

About

Cross Streets: Winston Park Dr & Brighton Rd. ** Directions: Take Hwy410 S merge onto QEW W toward Hamilton/Oakville exit at Ford Drive/Industrial Park area turn right onto Brighton Rd destination on your right. High-Quality Freestanding Building in Oakville's Sought-After Winston Business Park! This well-maintained property features a professionally finished NEW office area (5500 SQFT) and a bright warehouse with white-painted walls and roof deck. Recently upgraded with new skylights throughout the entire building, enhancing natural light. Cameras in the entire building as well. Enjoy two points of site access, a generous shipping apron with a concrete dolly pad, and easy connectivity to QEW, Hwy 403, Hwy 407, public transit, and a wide range of nearby retail amenities. (id:27476)

Property Highlights

MLS® Number
W12318981
Type
Industrial
Community Name
1021 - WP Winston Park
Land Size
1.3 ac
Parking Space Total
27

Building

Building Type
Warehouse
Square Footage
23664 sqft
Bathrooms Total
4
Amenities
Highway, Public Transit
Fireplace Present
No
Basement Type
Basement Features
Building Heating Type
Radiant heat
Heating Fuel
Building Cooling Type
Partially air conditioned

Utilities

Water
Municipal water

Location

Learn more about this property
Listing provided by:
EXECUTIVE REAL ESTATE SERVICES LTD.
MLS® number:
W12318981
Agent:
Herdeek Shah
*Indicates required field
Name is required
Email is required
Please enter a valid phone number (e.g., 416-111-1111).