2355 Lakeshore Road W, Oakville, Ontario L6L 1H4

Listed for:
$8,700
0 beds
1 baths
Listed 100 days ago
2355 Lakeshore Road W, Oakville, Ontario L6L 1H4

View all 4 photos

Learn more about this property
Listing provided by:
SUTTON GROUP OLD MILL REALTY INC.
MLS® number:
W12334605
Agent:
Lisa Lupynec
*Indicates required field
Name is required
Email is required
Please enter a valid phone number (e.g., 416-111-1111).

About

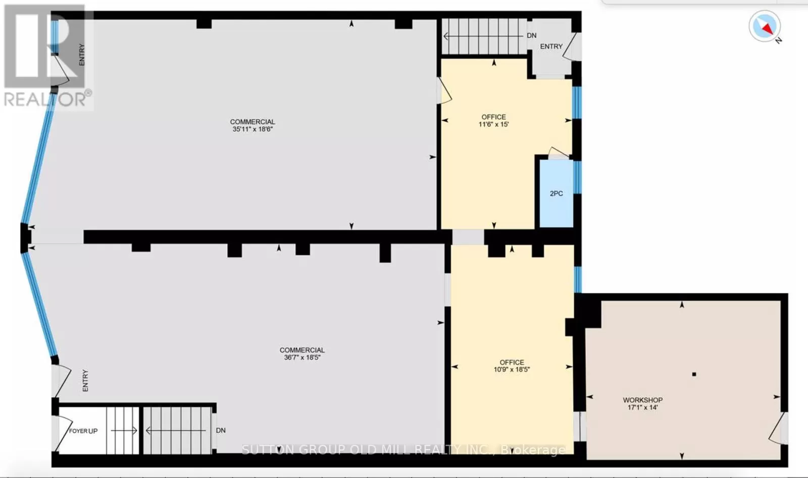
Cross Streets: Lakeshore & Bronte. ** Directions: East of Bronte. Prime Store Front Location In Trendy Bronte Village. Large And Bright Commercial Space With 2125 Sqf of Space Plus Use of Basement. Over 30 Feet Of Exposure Street Exposure. In Addition To Retail Space, This Unit Features 2 Offices A Workshop And 1 Washroom Plus Customer Parking In Front. Close To Transit, Go Train, Lake, Shopping And Restaurants. (id:27476)

Property Highlights

MLS® Number
W12334605
Type
Retail
Community Name
1001 - BR Bronte
Land Size
Unit=45.66 x 127.14 FT
Parking Space Total
6

Building

Square Footage
4100 sqft
Bathrooms Total
1
Amenities
Highway, Public Transit
Fireplace Present
No
Basement Type
Basement Features
Building Heating Type
Forced air
Heating Fuel
Natural gas
Building Cooling Type
Fully air conditioned

Utilities

Water
Municipal water

Location