227 Beechtree Crescent, Oakville, Ontario L6L 0A5

Listed for:
$2,079,000
5 beds
4 baths
Listed 130 days ago
House for rent: 227 Beechtree Crescent, Oakville, Ontario L6L 0A5

View all 49 photos

About

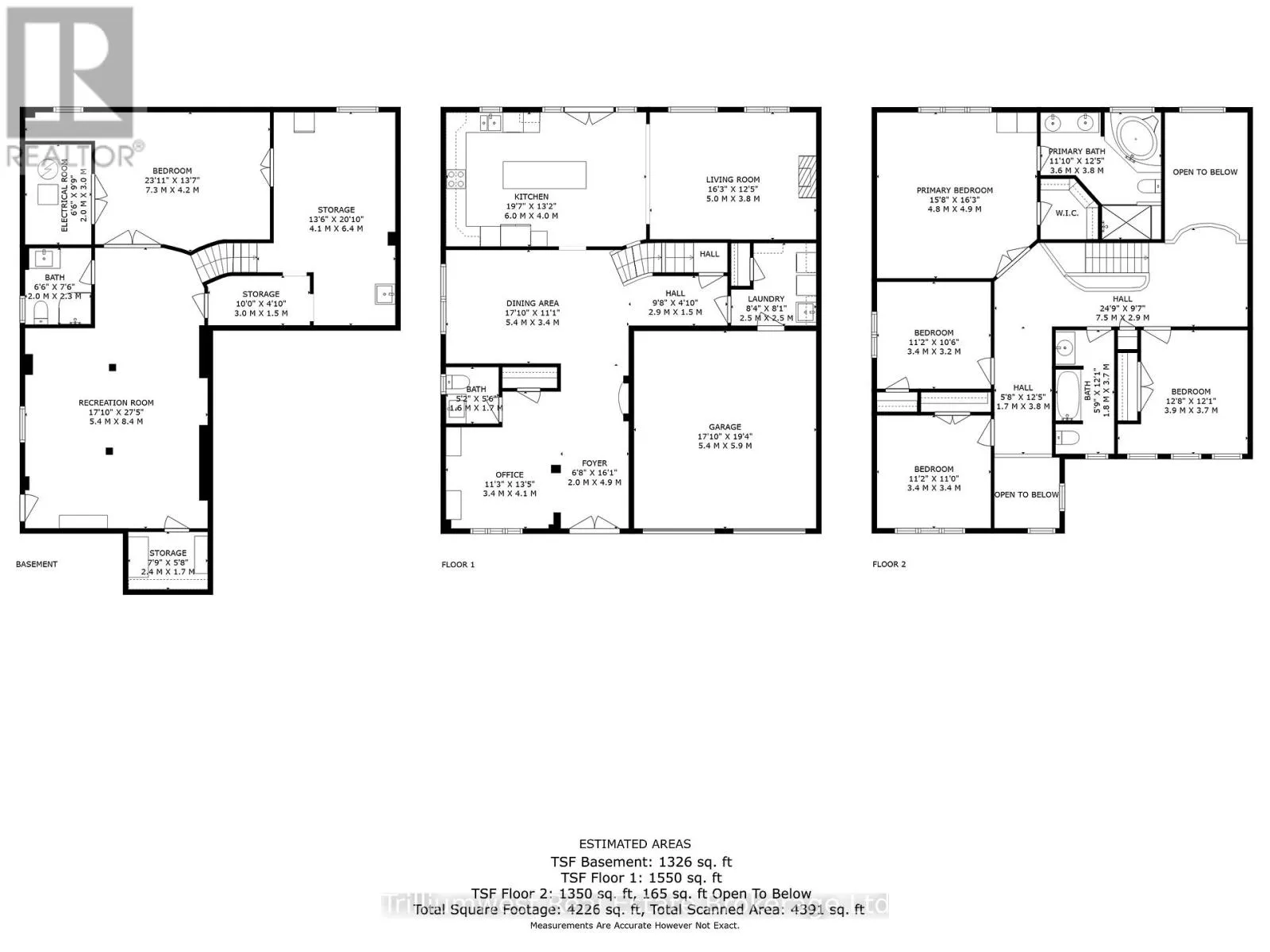
Cross Streets: Great Lakes & Rebecca. ** Directions: South on Great Lakes, left on Beechtree Cres. Step into luxury as you enter this beautiful home in the highly coveted Lakeshore Woods. Perfectly situated on a large, pie shaped lot, for the ultimate outdoor living experience. This 4+1 bedroom home is not only spacious, with over 4200 sq.ft total living space, it answers every family's backyard dreams with its newly installed (2024) 600+ sqft low maintenance deck incl. a covered living space that features an auto-louvered roof system, built-in-fireplace, space heater, lighting, and more. The front of the house boasts new (2024): flagstone porch, driveway and landscaping, and front walkway that leads you to a double gate entrance to the stunning backyard oasis. The large, modern pool has a newly installed (2024) liner and coping. You'll find a freshly painted Cabana nestled in the corner of the property that allows for convenient storage and a perfect spot for serving up refreshments. Artificial grass finishes this backyard, creating total low maintenance outdoor living. The upgrades continue inside with all appliances replaced in 2024, including: Stainless steel fridge, cook top, built-in stove, microwave, dishwasher, and washer & dryer. Upstairs, the bedrooms are generously sized with a large master bedroom that includes a walk-in closet and large ensuite. Main floor laundry room includes access to the finished garage, complete with epoxy flooring. A finished basement with a large rec room, 3pc bath, and extra bedroom finishes this home for the ultimate move-in ready property. Don't miss out on this rare opportunity to embrace easy, luxurious living in Oakville. (id:27476)

Property Highlights

MLS® Number
W12368722
Type
Single Family
Community Name
1001 - BR Bronte
Ownership Type
Freehold
Land Size
38.3 x 93.4 FT ; Pie-shaped Lot
Parking Space Total
4

Building

Building Type
House
Storeys
2.00
Square Footage
2500 - 3000 sqft
Bathrooms Total
4
Bedrooms Above Ground
4
Bedrooms Total
5
Amenities
Fireplace(s)
Exterior Finish
Brick
Fireplace Present
Yes
Basement Type
N/A (Finished)
Basement Features
Building Heating Type
Forced air
Heating Fuel
Natural gas
Building Cooling Type
Central air conditioning

Utilities

Water
Municipal water
Utility Sewer
Sanitary sewer

Room Layout

Primary Bedroom
Second level
4.8 m x 4.9 m
Bedroom 2
Second level
3.7 m x 3.9 m
Bedroom 3
Second level
3.4 m x 3.2 m
Bedroom 4
Second level
3.4 m x 3.4 m
Loft
Second level
2.77 m x 2.59 m
Recreational, Games room
Basement
8.4 m x 5.4 m
Bedroom 5
Basement
7.3 m x 4.2 m
Living room
Main level
3.4 m x 4.1 m
Dining room
Main level
5.4 m x 3.4 m
Kitchen
Main level
6 m x 4 m
Great room
Main level
5 m x 3.8 m
Laundry room
Main level
2.5 m x 2.5 m

Location

Learn more about this property
Listing provided by:
Trilliumwest Real Estate Brokerage
MLS® number:
W12368722
Agent:
Megan Stewart
*Indicates required field
Name is required
Email is required
Please enter a valid phone number (e.g., 416-111-1111).