564 Lyons Lane, Oakville, Ontario L6J 2Y1

Listed for:
$2,990,000
9 beds
6 baths
Listed 124 days ago
Other for rent: 564 Lyons Lane, Oakville, Ontario L6J 2Y1

View all 49 photos

Learn more about this property
Listing provided by:
ROYAL LEPAGE REALTY PLUS OAKVILLE
MLS® number:
W12370151
Agent:
Peter Markou
*Indicates required field
Name is required
Email is required
Please enter a valid phone number (e.g., 416-111-1111).

About

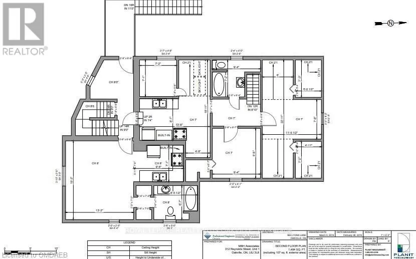
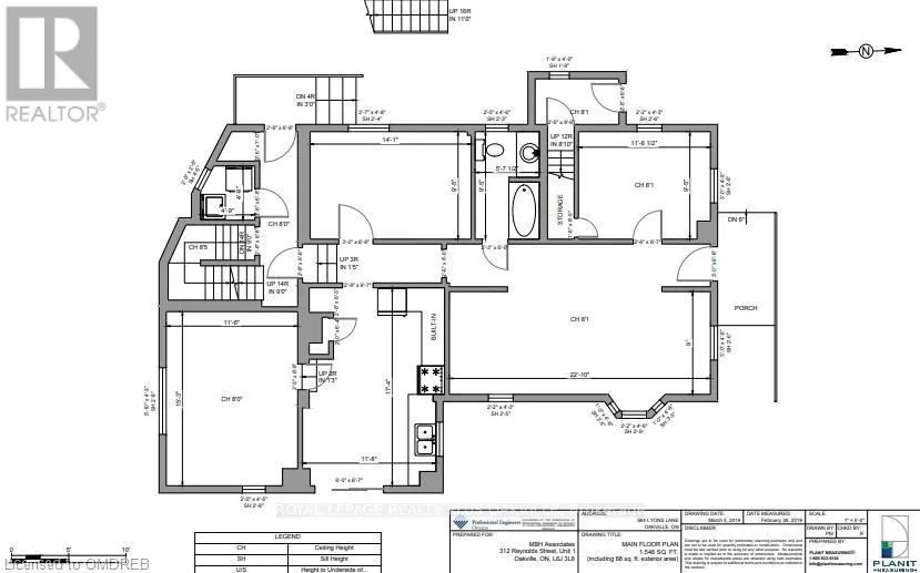
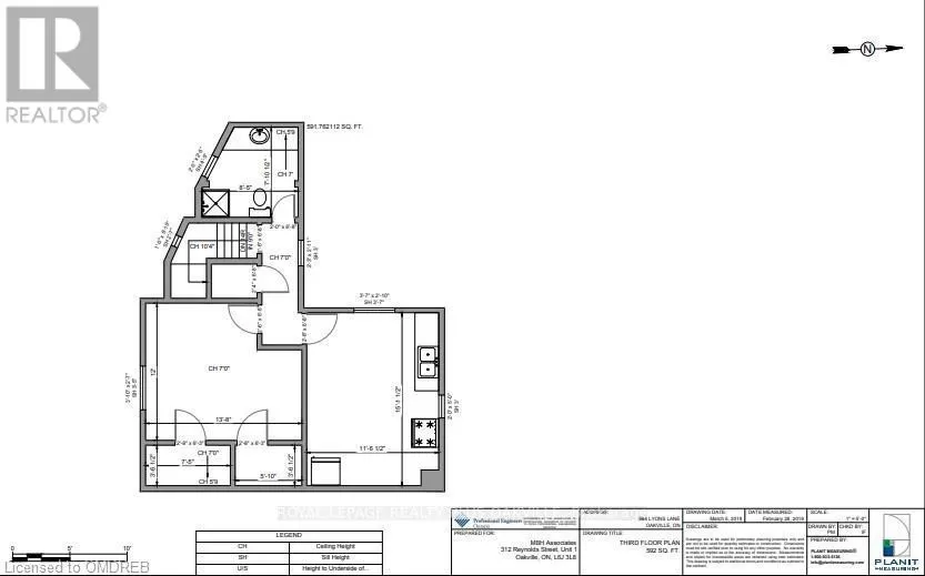
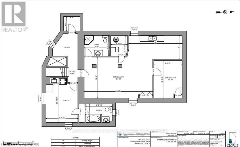
Lyons Lane / Cross Ave LOCATION, LOCATION! OAKVILLE GO! RARE LEGAL 6-PLEX EXCELLENT INCOME & FUTURE POTENTIAL! Incredible opportunity to own a fully renovated six-plex in the heart of Midtown Oakville, backing onto the tranquil 16 Mile Creek ravine with riparian rights and private staircase access to the river offering a true Muskoka feel just minutes from downtown! Situated on a premium pie-shaped lot (150W x 90D x 40D), this income-generating gem boasts a Net Income of $145K+ annually and features six self-contained units all renovated from the ground up with 6 brand new kitchens, 6 new bathrooms, granite countertops, porcelain tile, and stainless steel appliances throughout. Unit Breakdown:1 x Bachelor,1 x Studio,2 x 1-Bedroom,1 x 2-Bedroom,1 x 3-BedroomZoned Residential with legal non-conforming use as a 6-plex, offering excellent flexibility for multi-family living, rental investment, commercial use, AirBnB, work/live, or owner-occupy with income offset. Additional Features: 10-car parking, Huge backyard backing onto ravine, Steps to GO Station, Walk to Kerr Village & Downtown Oakville, Minutes to QEW, 403, 407, top-rated schools, shops, restaurants & more Prime redevelopment area with future land assembly potential in the rapidly growing Midtown Oakville corridor Whether you're an investor, end-user, or developer, this property checks all the boxes for location, income, and long-term upside. BROKERS PROTECTED. (id:27476)

Property Highlights

MLS® Number
W12370151
Type
Multi-family
Community Name
1014 - QE Queen Elizabeth
Land Size
150 x 90 FT
Parking Space Total
10

Building

Building Type
Other
Storeys
3.00
Square Footage
3500 - 5000 sqft
Bathrooms Total
6
Bedrooms Above Ground
9
Bedrooms Total
9
Amenities
Marina, Park, Public Transit, Schools
Exterior Finish
Vinyl siding
Fireplace Present
No
Basement Type
Full (Finished)
Basement Features
Building Heating Type
Forced air
Heating Fuel
Natural gas
Building Cooling Type
Central air conditioning

Utilities

Water
Municipal water
Utility Sewer
Sanitary sewer

Location