68 Thomas Street, Oakville, Ontario L6J 3A4

Listed for:
$3,495,000
4 beds
3 baths
Listed 15 days ago
House for rent: 68 Thomas Street, Oakville, Ontario L6J 3A4

View all 49 photos

About

Robinson St/Thomas St Welcome to 68 Thomas Street! This stunning heritage home (Georgian Revival circa 1835) offers the charm of yesteryear with today's modern amenities including a shaker-style kitchen with stainless steel appliances & countertop open to a bright, spacious breakfast area overlooking the pool and gardens. A sun-filled family room with wraparound windows and gas fireplace, gracious dining room with cross ventilation windows, main floor office/exercise room, 4 bedrooms including a gorgeous primary retreat with 4-piece ensuite, walk-in closet and lovely view of the serene rear yard. Hardwood floors, pot lighting, new A/C (2025), furnace (2016), roof (approx 10 yrs), beautiful millwork and trim, single car garage with studio space above. The property is secluded and private with spectacular towering trees and features a custom saltwater pool and surrounding terrace with multiple lounging areas. Designed by Sakura Gardens and featured on the Oakville Garden Tour, the property is exquisite and one of a kind. All just steps from the lake, harbour, shops and restaurants of downtown Oakville. (id:27476)

Property Highlights

MLS® Number
W12741778
Type
Single Family
Community Name
1013 - OO Old Oakville
Ownership Type
Freehold
Land Size
124.3 x 84.3 FT ; 127.65x84.39x103.49x20.03x24.32x103.92'
Parking Space Total
3

Building

Building Type
House
Storeys
2.00
Square Footage
3500 - 5000 sqft
Bathrooms Total
3
Bedrooms Above Ground
4
Bedrooms Total
4
Amenities
Fireplace(s) Marina, Park, Place of Worship, Public Transit
Exterior Finish
Stucco
Fireplace Present
Yes
Basement Type
N/A (Unfinished)
Basement Features
Building Heating Type
Radiant heat
Heating Fuel
Natural gas
Building Cooling Type
Central air conditioning

Utilities

Water
Municipal water
Utility Sewer
Sanitary sewer

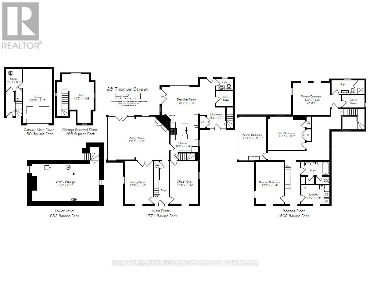
Room Layout

Laundry room
Second level
3.51 m x 2.36 m
Primary Bedroom
Second level
4.62 m x 4.01 m
Bedroom
Second level
5.26 m x 3.45 m
Bedroom
Second level
4.57 m x 4.14 m
Bedroom
Second level
5.46 m x 3.33 m
Kitchen
Main level
4.65 m x 3.45 m
Eating area
Main level
6.58 m x 3.4 m
Family room
Main level
7.54 m x 5.38 m
Dining room
Main level
5.28 m x 3.48 m
Office
Main level
5.28 m x 3.51 m
Mud room
Main level
2.59 m x 2.31 m

Location

Learn more about this property
Listing provided by:
Royal LePage Real Estate Services Ltd., Brokerage
MLS® number:
W12741778
Agent:
Peter Mccormick
*Indicates required field
Name is required
Email is required
Please enter a valid phone number (e.g., 416-111-1111).