2486 Old Bronte Road Unit# 401, Oakville, Ontario L6M 9Y5

Listed for:
$424,900
1 beds
1 baths
Listed 20 days ago
Apartment for rent: 2486 Old Bronte Road Unit# 401, Oakville, Ontario L6M 9Y5

View all 18 photos

About

Dundas Street to Old Bronte Road Beautiful open concept 1 bedroom condo located in prestigious Mint complex in Bronte Creek. Freshly installed quartz countertops, vinyl plank flooring and paint. Suite includes 1 underground parking/storage locker and in suite laundry. Amenities include gym, party room and rooftop. No smoking or pets permitted. Close to highways, shopping, hospital and Go Station. (id:27476)

Property Highlights

MLS® Number
40811936
Type
Single Family
Maintenance Fee
431.87
Ownership Type
Condominium
Land Size
Unknown
Parking Space Total
1

Building

Building Type
Apartment
Storeys
1.00
Square Footage
527 sqft
Bathrooms Total
1
Bedrooms Above Ground
1
Bedrooms Total
1
Amenities
Party Room Golf Nearby, Hospital, Marina, Place of Worship, Playground, Public Transit, Schools, Shopping
Exterior Finish
Brick Veneer, Stucco
Fireplace Present
No
Basement Type
None
Basement Features
Building Heating Type
Other
Heating Fuel
Building Cooling Type

Utilities

Water
Municipal water
Utility Sewer
Municipal sewage system

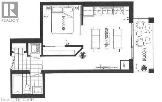
Room Layout

Kitchen
Main level
6'0'' x 11'9''
3pc Bathroom
Main level
Measurements not available
Laundry room
Main level
Measurements not available
Living room
Main level
11'9'' x 15'6''
Primary Bedroom
Main level
9'8'' x 9'10''

Location

Learn more about this property
Listing provided by:
RE/MAX Escarpment Realty Inc.
MLS® number:
40811936
Agent:
Ajay Bassi
*Indicates required field
Name is required
Email is required
Please enter a valid phone number (e.g., 416-111-1111).

Street Spotlight - For sale