2202 Brookhaven Crescent, Oakville, Ontario L6M 5B8

Listed for:
$1,939,000
6 beds
4 baths
Listed 15 days ago
House for rent: 2202 Brookhaven Crescent, Oakville, Ontario L6M 5B8

View all 43 photos

About

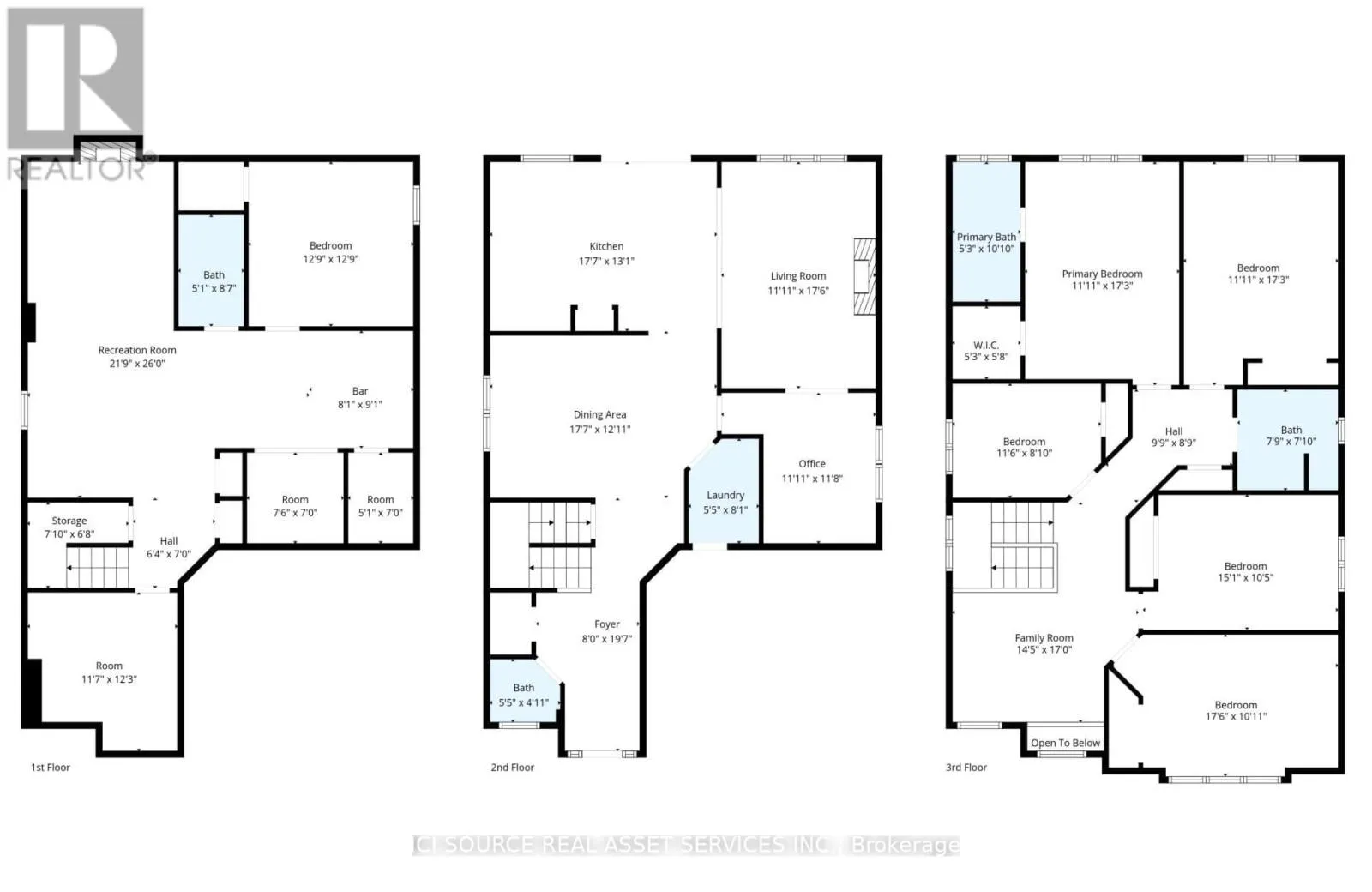
Westoak Trails and Brookhaven Cres Beautiful east-facing home situated on a highly sought-after street in Westmount, this elegant Markay-built 5+1 bedroom, 4-bathroom home offers exceptional space and family living in one of Oakville's most desirable communities. Walking distance to top-ranked Garth Webb Secondary School, scenic parks, ponds, and trails, and minutes to Glen Abbey Community Centre, Oakville Trafalgar Memorial Hospital, Abbey Plaza, and major highways. Beautiful brick and stone exterior with double driveway and attached garage. Private backyard oasis featuring a saltwater pool, wrap-around stone patio, mature evergreens, landscape lighting, and built-in outdoor speakers. The interior features 9-ft ceilings, hardwood floors, pot lights, California shutters, and custom wall details. The main level offers a sun-filled living room with gas fireplace, formal dining room, private office with French doors, and main-floor laundry. Bright kitchen with white cabinetry, granite counters, stainless steel appliances, pantry, and centre island with breakfast bar leading to the backyard. Upstairs offers a spacious family room, five bedrooms, and two full baths including a primary retreat with walk-in closet and updated ensuite. Newly finished basement (2025) includes recreation room with fireplace, second kitchen, bedroom, bath, and laundry-ideal for extended family. *For Additional Property Details Click The Brochure Icon Below* (id:27476)

Property Highlights

MLS® Number
W12891746
Type
Single Family
Community Name
1019 - WM Westmount
Ownership Type
Freehold
Land Size
40 x 109.9 FT
Parking Space Total
6

Building

Building Type
House
Storeys
2.00
Square Footage
2500 - 3000 sqft
Bathrooms Total
4
Bedrooms Above Ground
5
Bedrooms Total
6
Exterior Finish
Brick
Fireplace Present
Yes
Basement Type
N/A (Finished)
Basement Features
Building Heating Type
Forced air
Heating Fuel
Natural gas
Building Cooling Type
Central air conditioning

Utilities

Water
Municipal water
Utility Sewer
Sanitary sewer

Room Layout

Family room
Second level
4.38 m x 3.33 m
Primary Bedroom
Second level
5.16 m x 3.66 m
Bedroom 2
Second level
5.36 m x 3.63 m
Bedroom 3
Second level
3.53 m x 2.72 m
Bedroom 4
Second level
4.67 m x 3.2 m
Bedroom 5
Second level
4.67 m x 3.4 m
Office
Basement
3.28 m x 3.66 m
Recreational, Games room
Basement
6.53 m x 7.7 m
Living room
Main level
5.36 m x 3.63 m
Dining room
Main level
3.81 m x 3.63 m
Kitchen
Main level
5.38 m x 3.94 m
Den
Main level
3.53 m x 2.72 m

Location

Learn more about this property
Listing provided by:
ICI SOURCE REAL ASSET SERVICES INC.
MLS® number:
W12891746
Agent:
James Tasca
*Indicates required field
Name is required
Email is required
Please enter a valid phone number (e.g., 416-111-1111).