2091 Bridge Road, Oakville, Ontario L6L 2E8

Listed for:
$1,895,000
6 beds
5 baths
Listed 7 days ago
House for rent: 2091 Bridge Road, Oakville, Ontario L6L 2E8

View all 40 photos

About

Third Line and Bridge Road Welcome to an exceptional and spectacular home in the prestigious sought-after Bronte neighbourhood, where architectural elegance meets modern luxury. Soaring 14-foot ceilings on the main level create a striking sense of grandeur, complemented by expansive windows that flood the home with natural light. The thoughtfully designed main floor offers three spacious bedrooms and two full bathrooms, while the private primary retreat is elevated on a second-floor loft. The open-concept living, dining, and kitchen spaces are ideal for both everyday living andupscale entertaining. The designer kitchen features premium built-in JennAir appliances, crisp white cabinetry, quartz countertops, an oversized centre island, custom pantry storage, and a discreet computer niche. The primary suite is a true sanctuary, showcasing a spa-inspired 5-pieceensuite, a generous walk-in closet, and a rare walkout to a glass-enclosed balcony overlooking the front yard. A fully finished basement enhances the home's versatility, offering two bedrooms, two full bathrooms, Stainless Steel Appliances, separate laundry, and a private entrance. Step outside to a beautifully extended family room leading to a large deck with sleek glass railings-perfect for refined outdoor entertaining. A well-insulated workshop/storage shed completes the backyard retreat. Ideally located near QE Community Park, top schools, Bronte Harbour, Bronte GO Station, and major highways.**Virtually Staged Pictures** (id:27476)

Property Highlights

MLS® Number
W12919720
Type
Single Family
Community Name
1020 - WO West
Ownership Type
Freehold
Land Size
60 x 126.8 FT|under 1/2 acre
Parking Space Total
6

Building

Building Type
House
Storeys
1.50
Square Footage
2000 - 2500 sqft
Bathrooms Total
5
Bedrooms Above Ground
4
Bedrooms Total
6
Amenities
Hospital, Public Transit, Schools
Exterior Finish
Stone, Stucco
Fireplace Present
No
Basement Type
N/A, N/A
Basement Features
Apartment in basement, Separate entrance
Building Heating Type
Forced air
Heating Fuel
Natural gas
Building Cooling Type
Central air conditioning, Ventilation system

Utilities

Water
Municipal water
Utility Sewer
Sanitary sewer

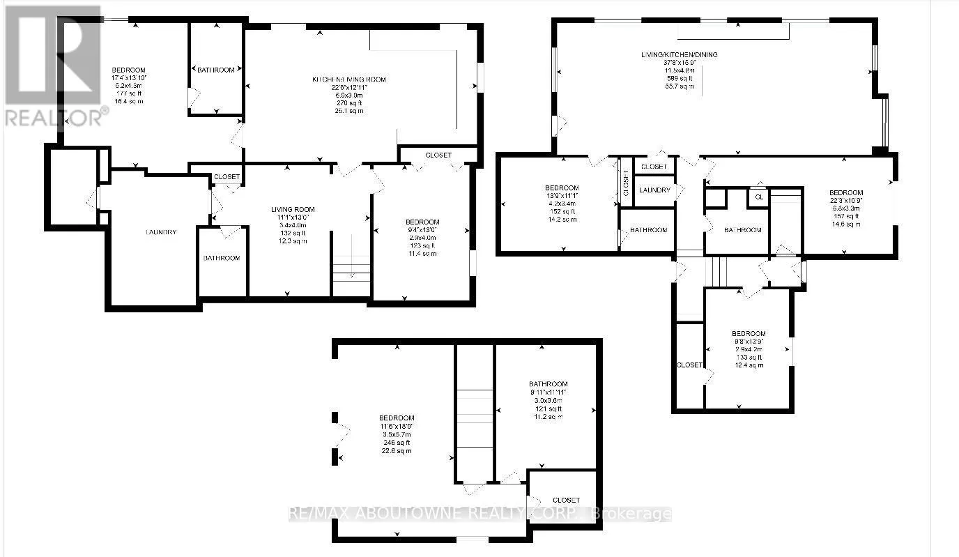
Room Layout

Bedroom
Second level
3.5 m x 5.7 m
Bedroom
Lower level
2.9 m x 4 m
Bedroom
Lower level
5.2 m x 4.3 m
Kitchen
Lower level
6.9 m x 3.9 m
Dining room
Lower level
6.9 m x 3.9 m
Living room
Lower level
3.4 m x 4 m
Living room
Main level
11.5 m x 4.8 m
Kitchen
Main level
11.5 m x 4.8 m
Dining room
Main level
11.5 m x 4.8 m
Bedroom
Main level
6.8 m x 3.3 m
Bedroom
Main level
2.9 m x 4.2 m
Bedroom
Main level
4.2 m x 3.4 m

Location

Learn more about this property
Listing provided by:
RE/MAX ABOUTOWNE REALTY CORP.
MLS® number:
W12919720
Agent:
Rayo Irani
*Indicates required field
Name is required
Email is required
Please enter a valid phone number (e.g., 416-111-1111).

Street Spotlight - For sale